Play Video
1170 - Watermael-Boitsfort

Immeuble For sale</p

+32 478 41 65 69
795 000 €
3 Rms
175 m²
10 m2
105

Wiener 15

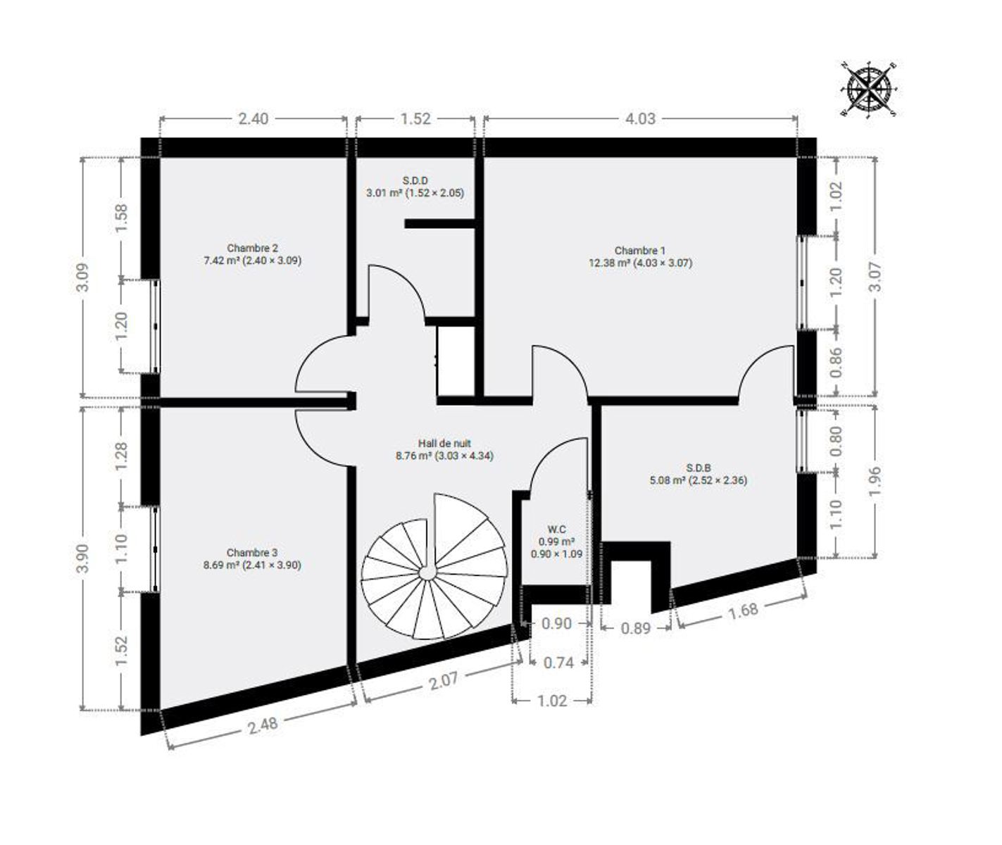
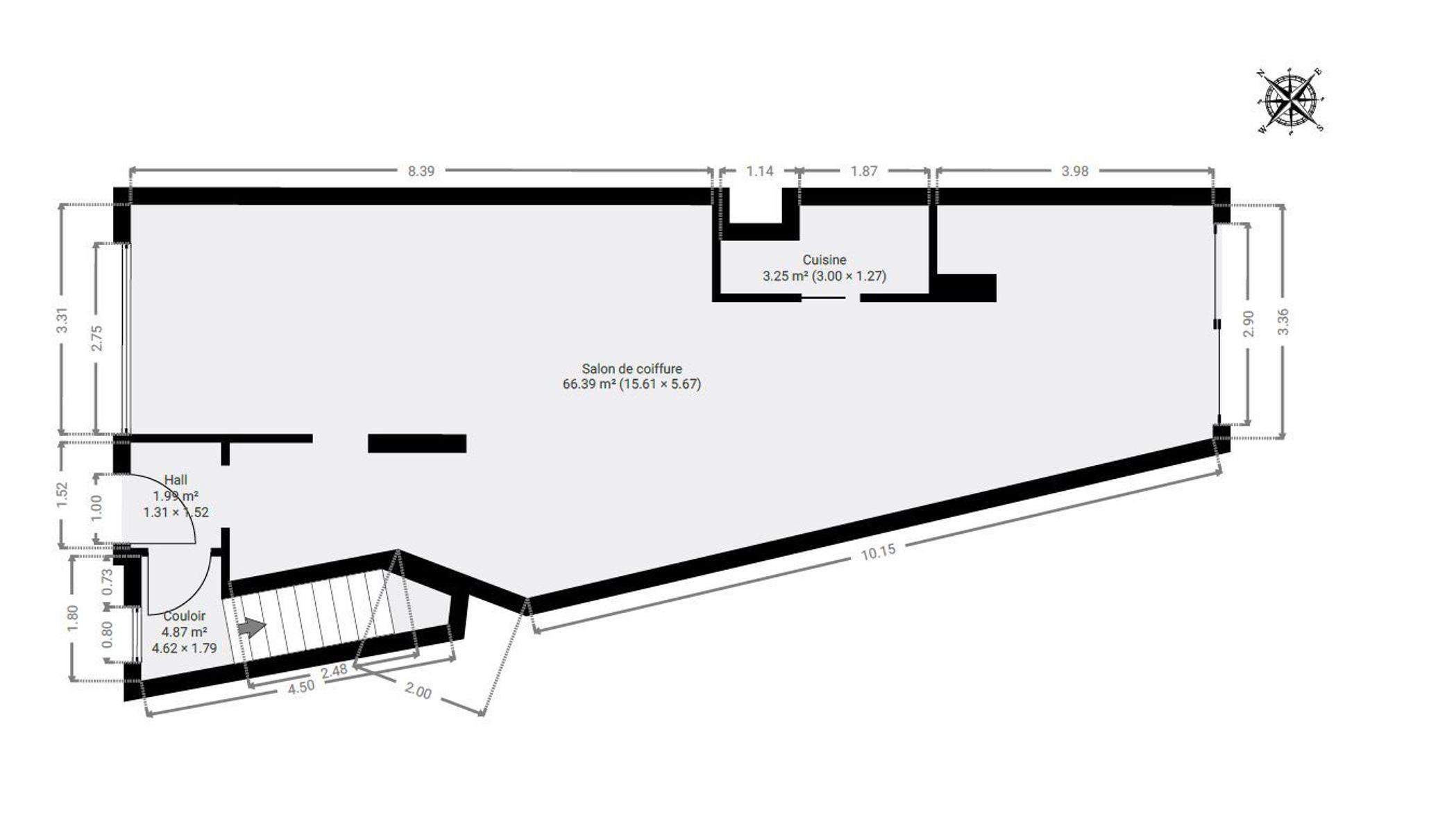
Located on Place Léopold Wiener, this mixed-use building enjoys a prime and strategic location in the beautiful municipality of Watermael-Boitsfort. It consists of 2 recognized units with independent entrances, namely a commercial ground floor over 2 levels of approx. 135 m² (currently a hair salon) and a triplex apartment of approx. 115 m² (according to EPC) on the upper floors. The residential unit includes on the 1st floor a large living/dining room, a kitchen, and a terrace of approx. 25 m² facing South-East. On the 2nd floor, there is a shower room, a separate toilet, and 3 bedrooms including a master suite with bathroom. Finally, on the 3rd floor there is a 4th bedroom of 17 m² fitted in the attic. Technical: EPC D-, individual gas boiler, non-compliant electricity | Very nice investment opportunity with good rental yield.

don't hesitate

Contact us!

Visit this property withNadia

+32 478 41 65 69

Visit this property withNadia

+32 478 41 65 69

Les traductions NL et EN de notre nouveau site sont en cours et seront bientôt disponibles.

The NL & EN versions of our new website are in progress and will be available soon.

De NL & EN versies van onze nieuwe website zijn onder constructie en zullen binnenkort beschikbaar zijn.

a specific search?

Contact us!

One of our agents will contact you to refine your search criteria. We always propose properties that correspond to your project.

We've received your visit request!

We will get back to you as soon as possible.