2 500 €
0
512 m²
Non
115

IL Vesuvio

Restaurant for rent with the business for sale, offering a genuine opportunity for a restaurateur wishing to establish themselves in a location that has been operating for over 30 years.

Located between Caserne and La Chasse, the property benefits from very good visibility in a lively environment and is suitable for immediate takeover.

It is situated on Avenue des Casernes, opposite the Municipality of Etterbeek.

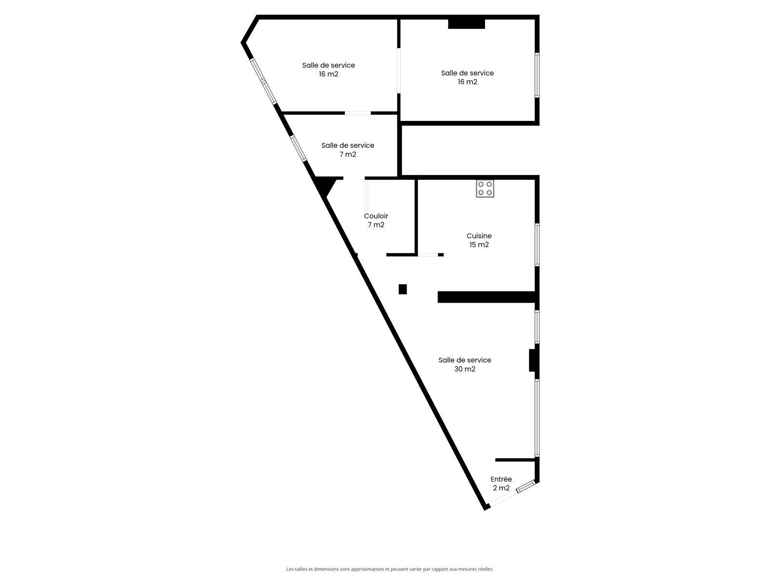
The restaurant offers dining areas with a capacity of 52 seats as well as a terrace with +- 30 seats.
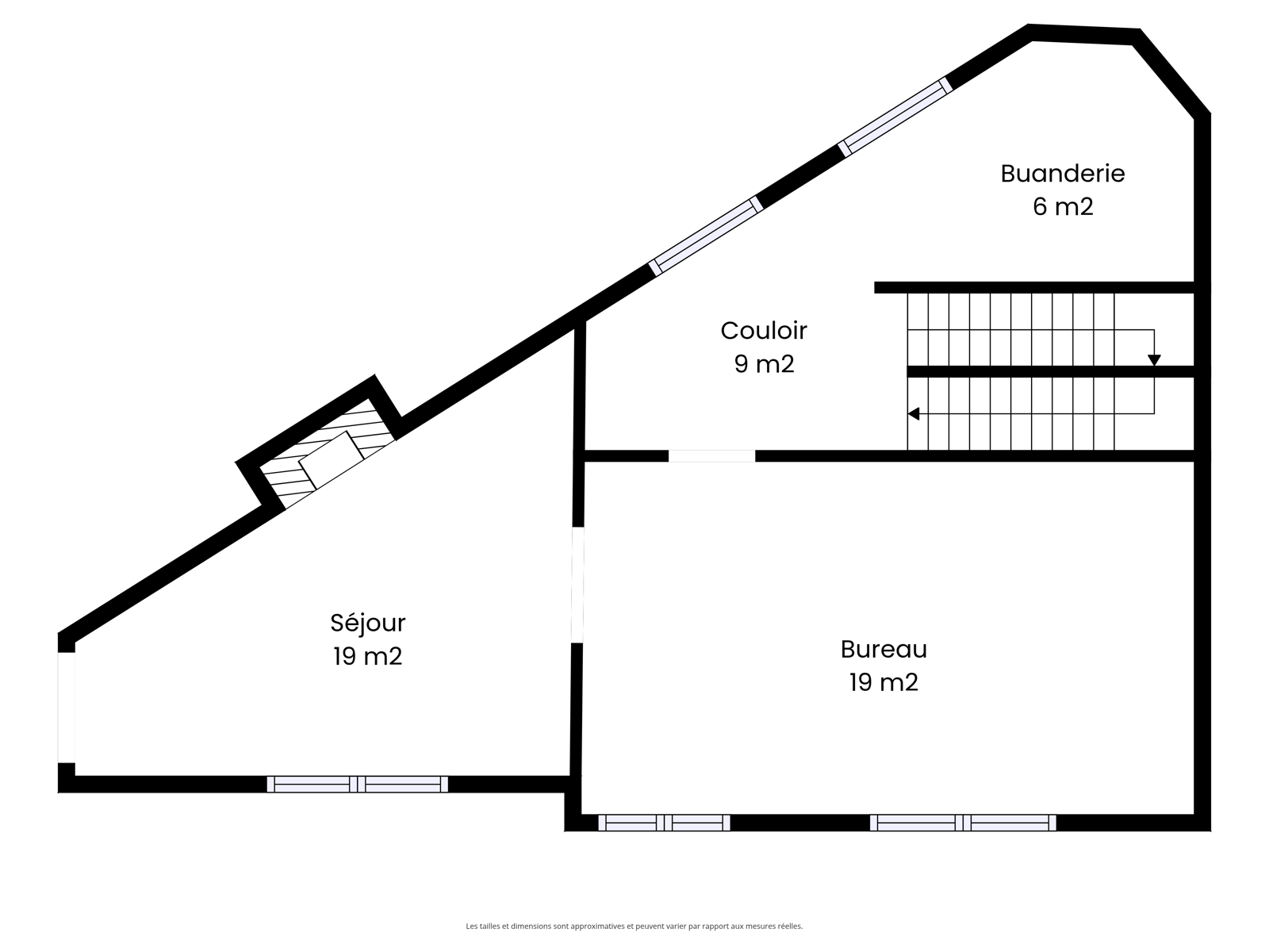
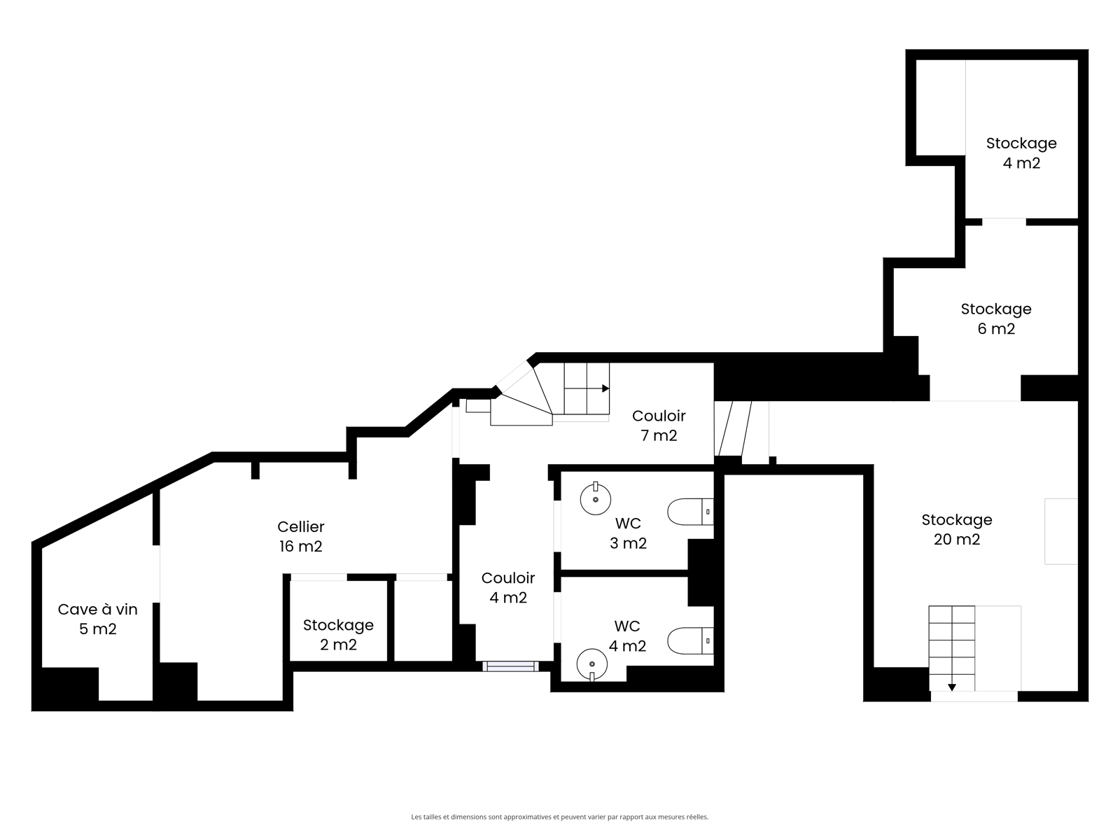
A functional wood-fired pizza oven is installed at the entrance, and the professional HORECA kitchen is fully equipped. The upper floor includes ancillary spaces with storage areas and an office. The basement features a cold room and a large storage area.

The rent amounts to €2,500, to which the annual property tax is added. The business is offered at €250,000 for the takeover of the company’s shares or at €300,000 as part of a classic asset sale.

Financial information, takeover conditions and the complete file are available upon simple request. Viewings are organised exclusively by appointment with the agency.

don't hesitate

Contact us!

Visit this property withLaurent

+32 475 70 11 16

Visit this property withLaurent

+32 475 70 11 16

Les traductions NL et EN de notre nouveau site sont en cours et seront bientôt disponibles.

The NL & EN versions of our new website are in progress and will be available soon.

De NL & EN versies van onze nieuwe website zijn onder constructie en zullen binnenkort beschikbaar zijn.

a specific search?

Contact us!

One of our agents will contact you to refine your search criteria. We always propose properties that correspond to your project.

We've received your visit request!

We will get back to you as soon as possible.