Play Video
1030 - Schaerbeek

Appartement Sous option

alexandre@bytheway.be
+32 474 40 18 00
395 000 €
2 Rms
130 m²
Non

CAMBIER 123

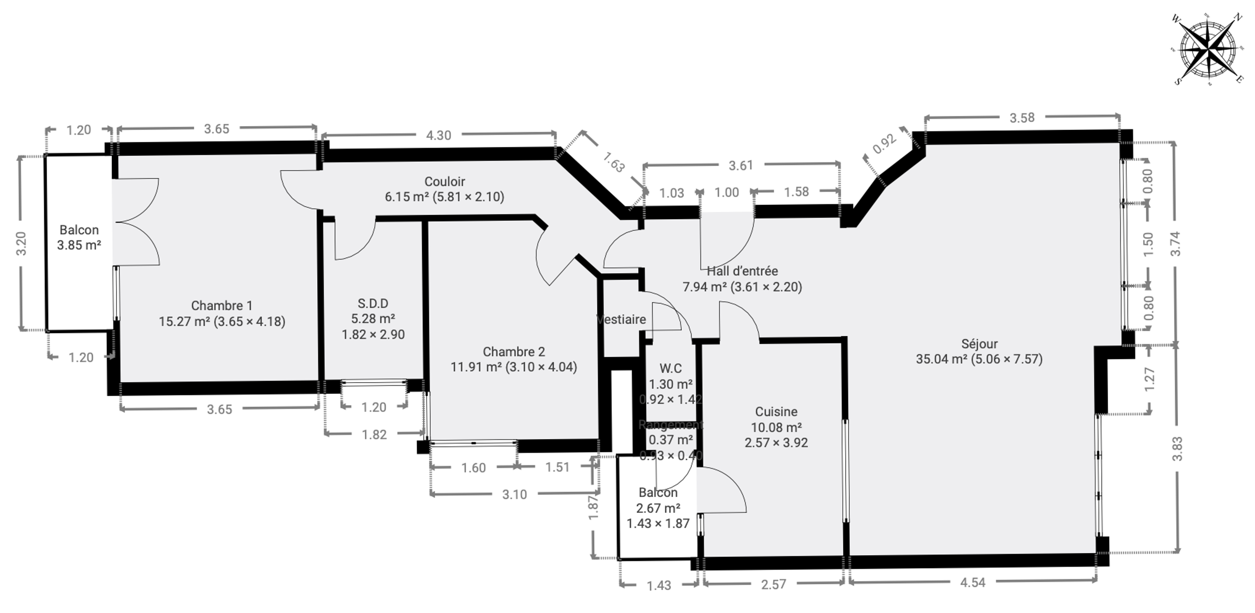
En attente du compromis – SCHAERBEEK – Plasky. Idéalement situé à proximité du Square Eugène Plasky, au cœur d’un quartier résidentiel prisé, calme et verdoyant, à proximité immédiate des transports en commun (Place Meiser), By The Way vous propose ce lumineux appartement de 130m² (selon PEB) entièrement rénové, situé au 2e étage avec ascenseur d’une petite copropriété de standing. Il se compose d’un hall d’entrée avec vestiaire et WC invités, donnant sur un séjour spacieux et baigné de lumière de ±35m² avec une jolie vue dégagée et une cuisine ouverte rénovée, parfaitement équipée, s’ouvrant sur un premier balcon extérieur. Le hall de nuit dessert deux belles chambres de respectivement 12m² et 15m², dont l’une profite d’une terrasse orientée sud-ouest, ainsi qu’une salle d’eau comprenant une douche à l’italienne, un meuble double vasque et un 2e WC. TECHNIQUE: PEB D-, Électricité conforme, châssis PVC double vitrage (2018), nouvelle chaudière commune au gaz à condensation (2015), toiture rénovée en 2024, porte blindée, vidéophone, nombreux espaces de rangements, cave. Charges : +/- 250€/mois comprenant charges communes et consommation privative de chauffage & d’eau et +/- 100€ par mois pour alimentation du fonds de réserve. Un bien élégant, rénové avec goût, où il ne vous reste plus qu’à poser vos valises.

n'hésitez pas

Contactez-nous

Visitez ce bien avec Alexandre

+32 474 40 18 00
alexandre@bytheway.be

Visit this property withAlexandre

+32 474 40 18 00
alexandre@bytheway.be

Les traductions NL et EN de notre nouveau site sont en cours et seront bientôt disponibles.

The NL & EN versions of our new website are in progress and will be available soon.

De NL & EN versies van onze nieuwe website zijn onder constructie en zullen binnenkort beschikbaar zijn.

a specific search?

Contact us!

One of our agents will contact you to refine your search criteria. We always propose properties that correspond to your project.

We've received your visit request!

We will get back to you as soon as possible.

Thank you very much! We've received your request!

One of our staff will get back to you as soon as possible.