Play Video
1180 - Uccle

Huis Verkocht

quentin@bytheway.be
+32 473 83 59 95
1 410 000 €
4 Bdr
330 m²
2600 m2
3900

ARCHIBALD

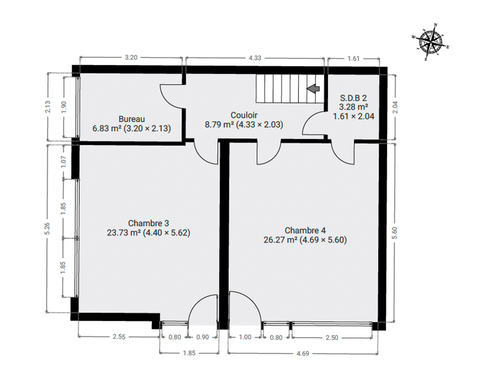
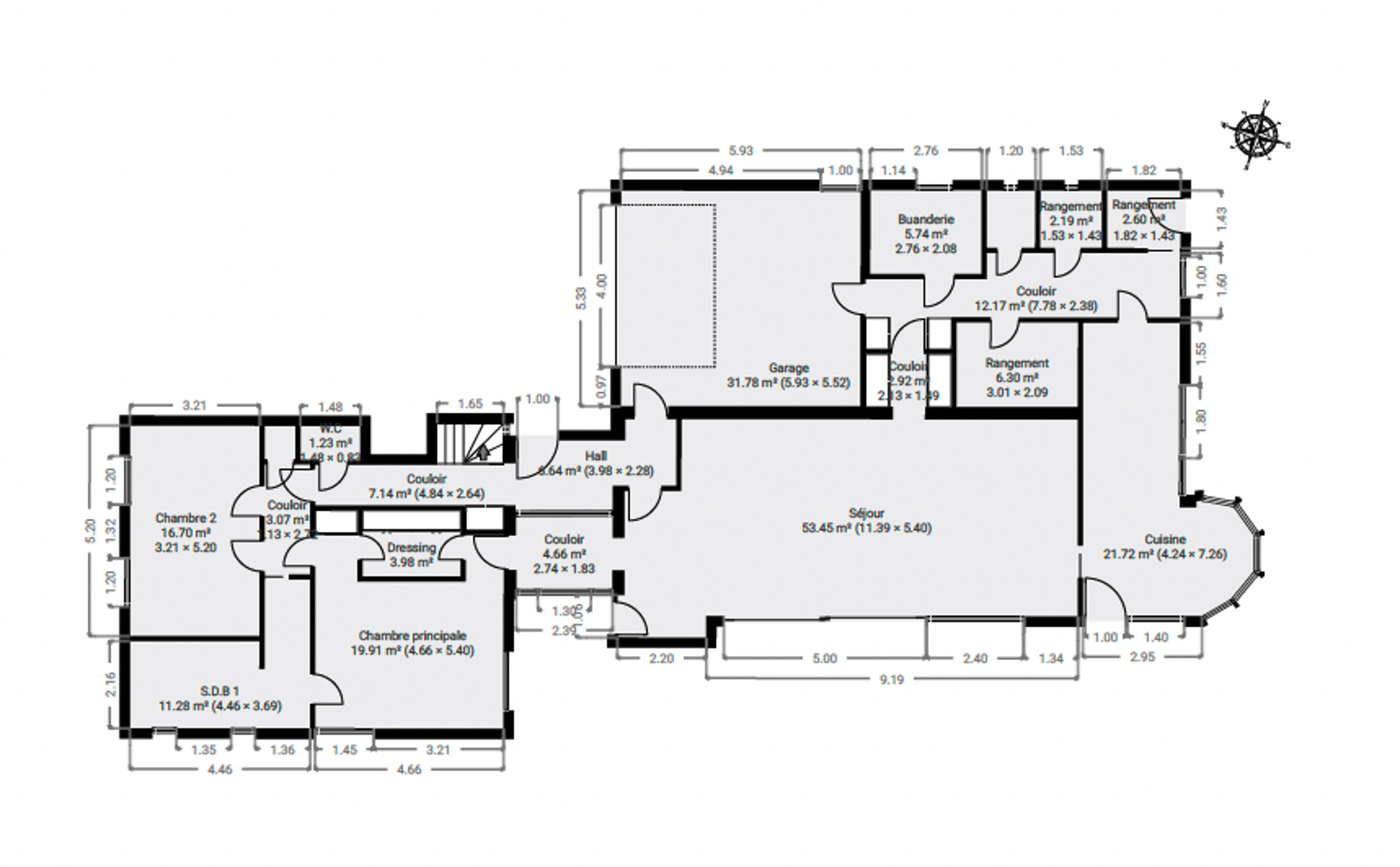
CONTACT: Quentin 0473 83 59 95 – quentin@bytheway.be – By The Way presenteert dit prachtige onder architectuur gebouwde huis gelegen op een heuvel in een bosrijk landschap tegenover een Natura 2000 park en de Kunstenaarsvallei op een perceel van +/- 39 are. Alle kamers van het huis kijken uit op het zuiden van de tuin en het grote terras. De woning geniet van een rustige, intieme omgeving, maar ligt toch dicht bij winkels en diensten in Ukkel en Linkebeek. Ontworpen door architect Yves Stevens, is de woning als volgt samengesteld; BEGANE GROND: Inkomhal met gastentoilet, woonkamer van +/- 54㎡, keuken van +/- 17㎡, hal, hoofdslaapkamer van +/- 25㎡ met zijn dressing en volledig vernieuwde badkamer (Italiaans bad en douche, dubbele wastafel en WC), slaapkamer 2 van +/- 17㎡, Benedenverdieping: hal, slaapkamer 3 van +/- 25㎡ met toegang tot de badkamer (bad, enkele wastafel wastafel en WC), slaapkamer 4 van +/- 21㎡, bureau van +/- 9m2. DIVERSEN: Garage voor 2 voertuigen, terras van +/-145㎡, bijkeuken met ruimte voor wasmachine en droger, 4 bergingen, tuinhuisje, jeu de boules terrein, poort, parkeerplaats voor 3 auto’s, dubbele beglazing, elektrische verwarming, niet aangesloten op riolering, EPC: “G”, elektriciteit NIET conform.

BEGANE GROND:

– Woonkamer van +/- 54㎡
– Keuken van +/- 17㎡
– Grote slaapkamer van +/- 25㎡ 
– Badkamer +/- 11,94
– Slaapkamer 2 +/- 17㎡

BENEDEN VERDIEPING:

– Slaapkamer 3 van +/- 25㎡ 
– Slaapkamer 4 van +/- 21㎡
– Kantoor van +/- 9㎡

DIVERSEN :

– Garage voor 2 voertuigen
– Terras van +/-145㎡
– Wasruimte met ruimte voor wasmachine en droger
– 4 bergingen, tuinhuisje
– Petanquebaan
– Poort, 
– Parkeerplaats voor 3 auto’s
– Ramen met dubbele beglazing
– Elektrische verwarming
– Niet aangesloten op riolering
– PEB : “G
– elektriciteit NIET CONFORM.

n'hésitez pas

Contactez-nous

Visitez ce bien avec Quentin

+32 473 83 59 95
quentin@bytheway.be

Bezoek deze woning met Quentin

+32 473 83 59 95
quentin@bytheway.be

Les traductions NL et EN de notre nouveau site sont en cours et seront bientôt disponibles.

The NL & EN versions of our new website are in progress and will be available soon.

De NL & EN versies van onze nieuwe website zijn onder constructie en zullen binnenkort beschikbaar zijn.

een specifieke zoekopdracht?

Conctacteer ons!

Een van onze agenten zal contact met u opnemen om uw zoekcriteria te verfijnen. Wij stellen altijd eigendommen voor die overeenstemmen met uw project.

We hebben je bezoekaanvraag ontvangen!

We nemen zo snel mogelijk contact met je op.

Hartelijk dank! We hebben je verzoek ontvangen!

Een van onze medewerkers zal zo snel mogelijk contact met je opnemen.