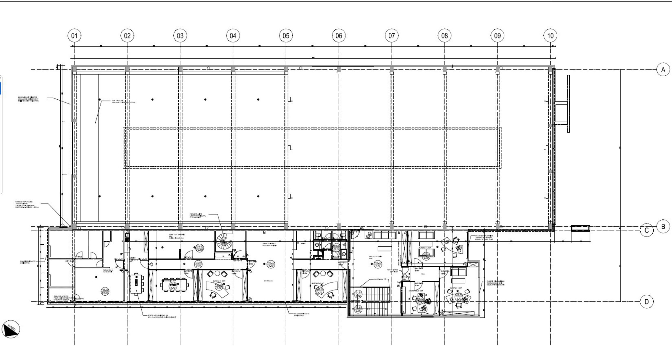
Infos & Visites, contactez Kristof: 0471 77 09 08 – [email protected] l Situé dans le Parc Industriel de Wauthier-Braine – Braine-le-Château. By The Way vous présente cet ensemble de bureaux (735m²) + entrepôts (1.110m²). La superficie brute de l’ensemble est 1.845m² sur un terrain de 6.557m² clôturé avec 3 accès. La localisation du Parc Industriel à Wauthier-Braine est stratégiquement positionée sur la E19 – à proximité de Bruxelles et les axes vers la France et l’Allemagne. L’immeuble (partiellement rénové 2008) est composé de suite: Accès au bureaux, possibilité de division pour 2 bureaux indépendant. Au rdc : bureaux (BULO), réception, WC’s, accès aux entrepôts. Au 1er étage: bureaux, réception, WC’s, accès aux entrepôts. + conciërgerie reconnu de 75m². 2 entrepôts de 550m² par unité (relié par porte sectionelle) + mezzanine de 60m² – H.S.P.: 8,00m – 2 accès par portes sectionelles (4,5m x 5m). Usage actuel: 1 entrepôt pour showroom + 1 entrepôt pour stockage (STOW). Construction en Hourdis Béton + dal en béton + lucarne + cablage triphasé + pont de levage de 17 tonnes. cabine haute tension – cabine chaufferie – parkings: +- 30 places (possibilité pour asphalté plus). Infos & Visites, contactez Kristof: 0471 77 09 08 – [email protected]
Pièces
Général
Superficies
Energie
Immeuble a usage multiple Immeuble a usage multiple
Les traductions NL et EN de notre nouveau site sont en cours et seront bientôt disponibles.
The NL & EN versions of our new website are in progress and will be available soon.
De NL & EN versies van onze nieuwe website zijn onder constructie en zullen binnenkort beschikbaar zijn.
une recherche spécifique?
Contactez-nous !
Un de nos agents prendra contact avec vous pour affiner vos critères de recherche. Nous vous proposons toujours des biens qui correspondent à votre projet.
Nous avons bien reçu votre demande de visite !
Nous vous recontacterons dans les meilleurs délais.