Play Video
1980 - Zemst

Maison Option

+32 471 77 09 08
1 185 000 €
6 Ch
370 m²
958 m2
958

KEIZER KAREL 7

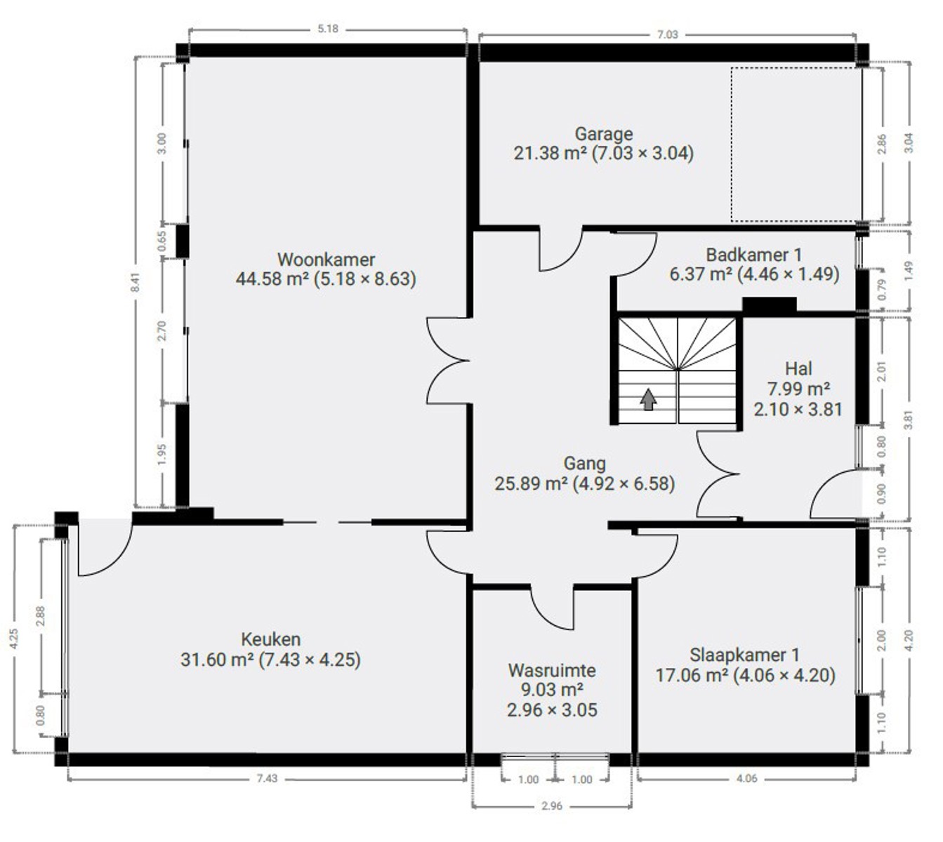
Infos & visites : Kristof – +32 471 77 09 08 – [email protected] | Située à Elewijt (Zemst), à proximité du Château de Schiplaken et du Domaine de Hofstade, dans un quartier résidentiel calme avec accès direct aux axes routiers, By the Way propose cette villa contemporaine de 370 m², entièrement rénovée en 2026, implantée sur une parcelle de 9a58ca. Aux excellentes performances énergétiques (PEB A) et aux finitions et équipements haut de gamme, ce bien dispose d’un jardin orienté plein sud avec piscine chauffée. COMPOSITION: le rez-de-chaussée comprend un hall d’entrée avec vestiaire, un grand séjour avec vue sur le jardin et la piscine, une spacieuse cuisine avec îlot central hyper équipée avec plan de travail en Calacatta, une buanderie, une première chambre, une salle de douche, un WC et un garage complètent ce niveau. À l’étage, un grand hall de nuit dessert cinq chambres, dont une suite parentale avec salle de bains et dressing, un bureau, ainsi que trois autres chambres et une seconde salle de douche. Le jardin comprend une terrasse, une véranda, un abri et une douche extérieure. TECHNIQUES : PEB A (51 kWh/m²/an), électricité conforme, certificat amiante, chaudière gaz à condensation VIESSMANN, chauffage sol, triple vitrage, domotique, installation photovoltaïques (19 panneaux – 8 kWh), citerne d’eau de pluie, climatisation réversible, volets électriques, alarme et caméras | Toutes les infos via le lien suivant: https://bytheway.immo/bien/7576507-keizer-karel-7/

TECHNIQUE
  • PEB A (51 kWh/m²/an)
  • Installation électrique conforme
  • Certificat amiante disponible
  • VMC double flux
  • Chaudière à condensation au gaz (VIESSMANN)
  • Chauffage par le sol au rez-de-chaussée et au 1er étage
  • Climatisation réversible (chaud/froid)
  • Châssis triple vitrage avec isolation thermique et acoustique
  • Système domotique
  • Citerne d’eau de pluie avec bypass (alimentation des WC et machines à laver)
  • Piscine chauffée avec pompe à chaleur
  • Installation photovoltaïque (19 panneaux – puissance 8 kW)
  • Cuisine entièrement équipée avec plan de travail en Calacatta (électroménagers BOSCH, cuisinière gaz 5 feux, double réfrigérateur)
  • Adoucisseur d’eau
  • Câblage Ethernet
  • Système d’alarme avec caméras

n'hésitez pas

Contactez-nous

Visitez ce bien avec Kristof

+32 471 77 09 08

Les traductions NL et EN de notre nouveau site sont en cours et seront bientôt disponibles.

The NL & EN versions of our new website are in progress and will be available soon.

De NL & EN versies van onze nieuwe website zijn onder constructie en zullen binnenkort beschikbaar zijn.

une recherche spécifique?

Contactez-nous !

Un de nos agents prendra contact avec vous pour affiner vos critères de recherche. Nous vous proposons toujours des biens qui correspondent à votre projet.

Nous avons bien reçu votre demande de visite !

Nous vous recontacterons dans les meilleurs délais.