1200 - Woluwe-Saint-Lambert

Appartement Loué

+32 471 50 28 74
2 000 €
4 Ch
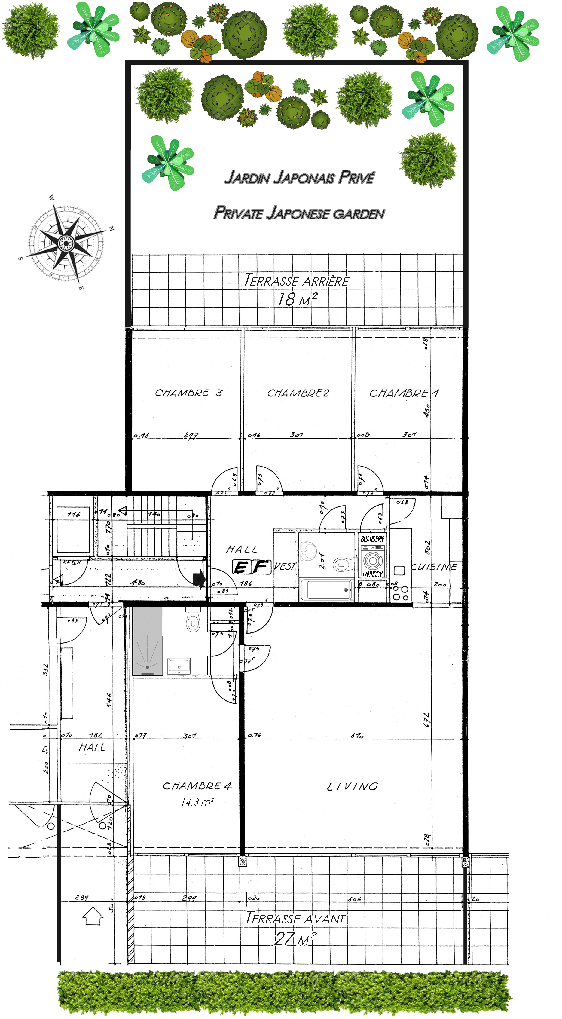
140 m²
Non

Aquilon 9 RDC

Au cœur des « Jardins Saint-Lambert », un havre de paix piétonnier dans un parc de 3 hectares à 600 m. de la station Roodebeek (métro/tram/bus), du Woluwe Shopping et d’autres commerces, de nombreuses écoles dont l’européenne, des grands axes, du ring, de l’OTAN et de l’aéroport, By the Way vous propose ce beau & rare rez-de-jardin traversant de 140 m² avec 4 chambres offrant ce qui suit :
– hall d’entrée via une porte blindée à serrure Fichet,
– vaste et lumineux living de 42m² avec parquet en chêne donnant sur la spacieuse terrasse avant de 27m² orientée sud-est avec tente solaire,
– cuisine semi-ouverte et super-équipée avec taque de cuisson, four multifonctions, réfrigérateur-surgélateur et lave vaisselle),
– chambre 1 de 14m² en façade avant donnant -comme le séjour- sur la terrasse avant, salle de douche attenante et récente avec wc.

Via le hall central, accès aux pièces centrales et arrière à :
– la salle de bain avec baignoire, lavabo et 2ème wc,
– l’espace buanderie séparé,
– aux chambres 2, 3 et 4 de 13m² chacune (aucune petite) donnant toutes les 3 sur la longue terrasse arrière de 18 m² et le jardin japonais de 40 m² (ouest).
– Châssis double-vitrage & volets occultants. Cave n° 1 de 2m² incluse.

En option pour 150 € : un grand garage-box fermé (8mx3) avec porte télécommandée & 2è cave de 2m².
– Excellent PEB C – Electricité conforme – R.U. conformes – Ascenseur aux normes.
– Si besoin d’une grande lessiveuse, laverie commune au -1.

– Terrain de tennis privé
– Chauffage central de 2019 au gaz à condensation à cogénération !
– Provision de charges pour : entretien + eau & électricité des communs, entretien ascenseur & jardins, frais de syndic, chauffage, eau chaude et eau froide privative – en résumé TOUT sauf électricité privée et wifi -: 250 à 300 € selon la composition de famille.
A voir rapidement !

n'hésitez pas

Contactez-nous

Visitez ce bien avec Didier

+32 471 50 28 74

Les traductions NL et EN de notre nouveau site sont en cours et seront bientôt disponibles.

The NL & EN versions of our new website are in progress and will be available soon.

De NL & EN versies van onze nieuwe website zijn onder constructie en zullen binnenkort beschikbaar zijn.

une recherche spécifique?

Contactez-nous !

Un de nos agents prendra contact avec vous pour affiner vos critères de recherche. Nous vous proposons toujours des biens qui correspondent à votre projet.

Nous avons bien reçu votre demande de visite !

Nous vous recontacterons dans les meilleurs délais.