
Appartement À vendre
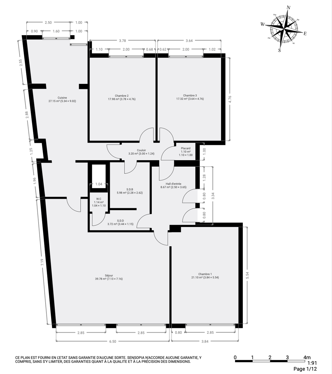
IXELLES – Cimetière d’Ixelles – Situé au 1er étage d’un bel immeuble de standing du très prisé Square des Latins à Ixelles, à proximité du Bois de la Cambre et du Cimetière d’Ixelles, des commodités et des transports (Train, tram, bus), ByTheWay vous propose ce splendide appartement de caractère d’une superficie brute de 152 m² (Selon PEB). L’appartement se compose comme suit : Un hall d’entrée, un vaste et lumineux séjour de +/- 60 m², une sdb avec WC et une douche accessible par 2 pièces d’eau, un WC séparé, deux chambres de respectivement +/- 17 m² et 18 m², une cuisine équipée lumineuse avec vue dégagée, une grande cave privative, un garage (box fermé avec porte sectionnelle) en supplément obligatoire à 50.000 euros et un espace vélo. L’appartement dispose d’une porte blindée, d’un parlophone, d’espaces de rangement incrustés (Placard & garde-robe) et de volets électriques. Technique : Châssis PVC double vitrage, sol en parquet massif, électricité non-conforme. Charges +/- 350€ par mois comprenant, les charges communes (Nettoyage, sortie des poubelles, eau & électricité, syndic, ascenseur) et les charges privatives (Chauffage et eau chaude). PEB C-, chaudière commune au gaz à condensation, À découvrir au plus vite chez ByTheWay!

Un de nos agents prendra contact avec vous pour affiner vos critères de recherche. Nous vous proposons toujours des biens qui correspondent à votre projet.
L’un de nos collaborateurs vous recontactera dans les meilleurs délais.