5500 - Dinant

Maison À vendre

+32 491 74 58 34
507 700 €
9 Ch
245 m²
40 m2
140

CROISETTE

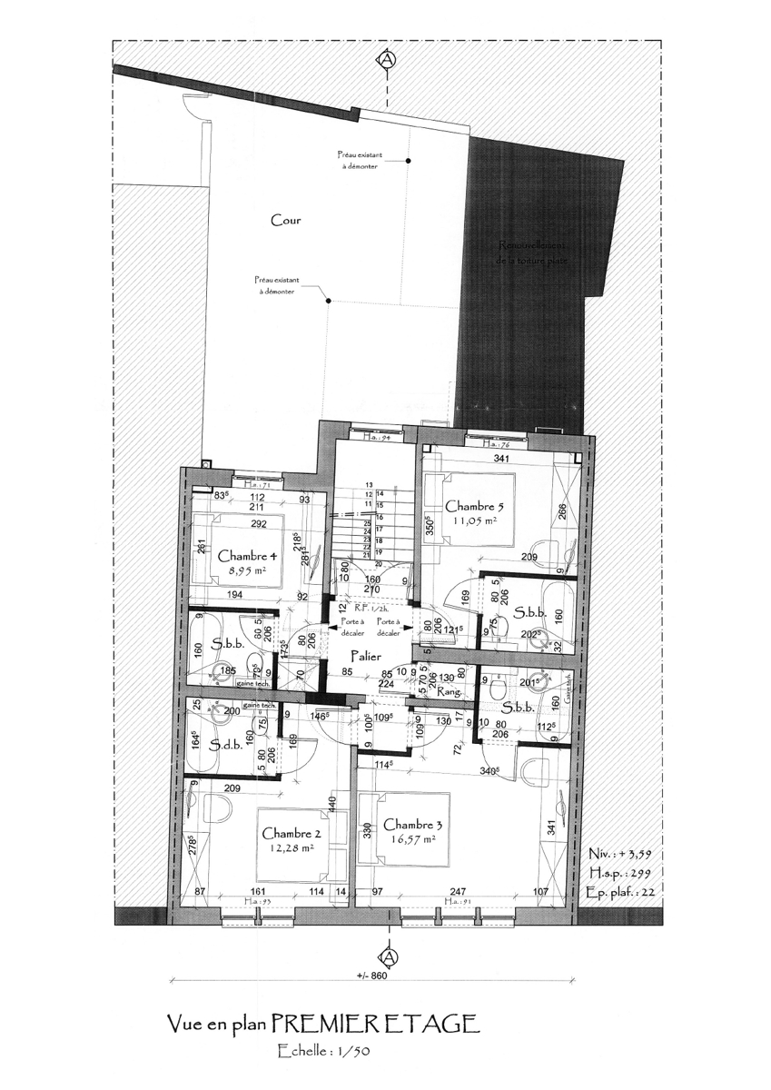
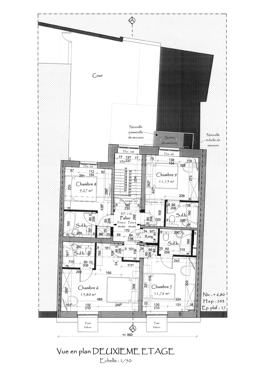
Situation exceptionnelle sur la croisette en plein centre-ville, face à la Meuse, By the Way vous propose ce magnifique immeuble avec façade de caractère de +- 245m2 répartis sur 4 niveaux avec cour/jardin. Vendu en l’état de gros œuvre fermé (CASCO), le bien a déjà fait l’objet de nombreux travaux de rénovation : réfection complète de la façade, nouvelle toiture, châssis neufs. Proposé avec un projet d’architecte complet pour un aménagement en hôtel de 9 chambres, pour lequel un permis d’urbanisme avait été délivré par la Ville de Dinant en 2013, l’immeuble se compose comme suit : Un premier espace de ± 60 m² au rez-de-chaussée avec accès direct sur la croisette, parfait pour la création d’un petit commerce indépendant ou studio. Au 1er étage, vaste et lumineux plateau de ± 80 m² avec vue sur Meuse et jardin à l’arrière. Plateau de ± 70 m² au 2ème étage. 3ème étage, superbe espace sous toiture de ± 70 m², avec charpente apparente d’origine. Une opportunité rare et exclusive au cœur de Dinant qui constitue une toile blanche à aménager selon vos goûts et vos projets et qui conviendra à de nombreux projets immobiliers: maison unifamiliale, logement touristique, exploitation hôtelière ou établissement HORECA |

n'hésitez pas

Contactez-nous

Visitez ce bien avec Benoît

+32 491 74 58 34

Les traductions NL et EN de notre nouveau site sont en cours et seront bientôt disponibles.

The NL & EN versions of our new website are in progress and will be available soon.

De NL & EN versies van onze nieuwe website zijn onder constructie en zullen binnenkort beschikbaar zijn.

une recherche spécifique?

Contactez-nous !

Un de nos agents prendra contact avec vous pour affiner vos critères de recherche. Nous vous proposons toujours des biens qui correspondent à votre projet.

Nous avons bien reçu votre demande de visite !

Nous vous recontacterons dans les meilleurs délais.

Merci ! Nous avons bien reçu votre demande !

L’un de nos collaborateurs vous recontactera dans les meilleurs délais.