1080 - Molenbeek-Saint-Jean

Appartement Option

kristof@bytheway.be
+32 471 77 09 08
110 000 €
1 Ch
28.8 m²
Non

HAINAUT 5

Infos & visites : Kristof – +32 471 77 09 08 – kristof@bytheway.be |
MOLENBEEK – Zone du canal – Charmant studio avec vue sur le canal – idéal pour les jeunes actifs ou les étudiants
Situé sur le quai du Hainaut, il bénéficie d’une excellente desserte via le petit Ring, le metro ligne 1 et 5, le tram nord-sud et d’excellentes liaisons cyclables.
À quelques pas de Sainte-Catherine, de la Bourse et du Marché aux poissons – le cœur de la restauration, de la culture et de la convivialité.
Vous recherchez votre premier logement dans un emplacement privilégié à Bruxelles ?

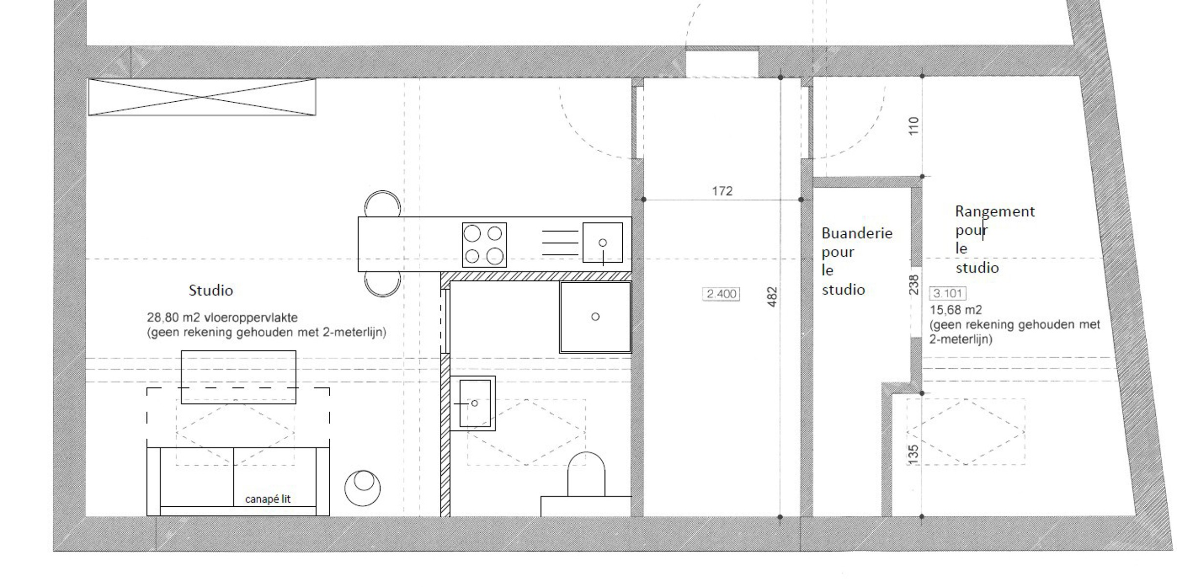
Ce studio de 29 m² avec un espace de rangement de 15 m²
est situé au quatrième et dernier étage d’une petite copropriété, juste à côté du canal et à proximité du quartier animé de Dansaert.
Aménagement
Pièce à vivre avec cuisine, coin salon et coin nuit,
Salle de bains actuellement aménagée dans le débarras adjacent (vendu avec le studio) – doit encore être intégrée au studio conformément aux prescriptions urbanistiques.

Atouts
Vue unique sur le canal
Environnement urbain authentique, plein de vie et de possibilités
Récemment régularisé

Projet de rénovation idéal : à aménager et à finir selon vos goûts

Infos pratiques
PEB : G (546 kWh/m²/an) – chauffage électrique
Électricité : non conforme
Quelques travaux de rafraîchissement nécessaires

Parfait pour ceux qui recherchent leur première propriété et ne craignent pas les projets à potentiel.

n'hésitez pas

Contactez-nous

Visitez ce bien avec Kristof

+32 471 77 09 08
kristof@bytheway.be

Les traductions NL et EN de notre nouveau site sont en cours et seront bientôt disponibles.

The NL & EN versions of our new website are in progress and will be available soon.

De NL & EN versies van onze nieuwe website zijn onder constructie en zullen binnenkort beschikbaar zijn.

une recherche spécifique?

Contactez-nous !

Un de nos agents prendra contact avec vous pour affiner vos critères de recherche. Nous vous proposons toujours des biens qui correspondent à votre projet.

Nous avons bien reçu votre demande de visite !

Nous vous recontacterons dans les meilleurs délais.

Merci ! Nous avons bien reçu votre demande !

L’un de nos collaborateurs vous recontactera dans les meilleurs délais.