By the Way vous présente en exclusivité un appartement idéalement bien situé entre Stockel et le Parc de Woluwe, à 200 m. des arrêts du bus 36 et du tram 39 vous menant tous les deux au métro, non loin du Woluwe Shopping Center, entouré de commerces de proximité, de crèches et d’écoles, de restaurants et de loisirs comme Sportcity à 750 m. Bref, une situation I-DE-AL-E !
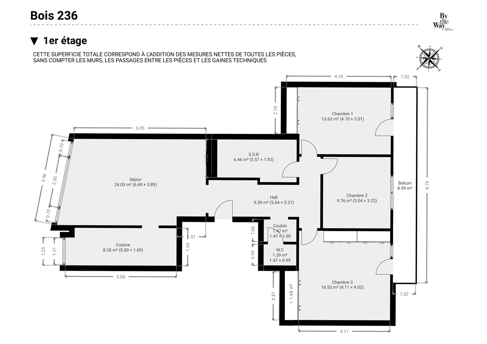
Au 1er étage sur 4 d’une petite copropriété avec ascenseur (aux normes), cet appartement traversant vous offre :
– hall d’entrée avec vestiaire et WC,
– en façade avant, living avec feu ouvert et cuisine équipée d’origine séparée (possibilité d’enlever la cloison), le tout orientés sud-ouest,
– hall de nuit menant aux 3 belles chambres à l’arrière dont 2 avec grands placards encastrés,
– accès à la grande terrasse arrière actuellement fermée mais possibilité de la réouvrir (négociable),
– grande salle de bain scindable en 2 afin de créer une salle de douche séparée.
– Belle cave en sous-sol.
– Parquet en chêne semi-massif en bon état.
– Chaudière individuelle au gaz à condensation (Bosch de 2023).
– PEB C – Certificat électrique CONFORME jusque 2050.
– Pas d’amiante – R.U. en attente.
– Charges communes mensuelles 150 €.
Appartement en bon état général, très sain et avec de beaux volumes nécessitant néanmoins un bon rafraîchissement mais une aubaine à un prix très raisonnable pour le quartier. A visiter sans tarder !