Play Video
1030 - Schaerbeek

Appartement Vendu

quentin@bytheway.be
+32 473 83 59 95
193 000 €
1 Ch
92 m²
Non
92

Henri Bergé 55

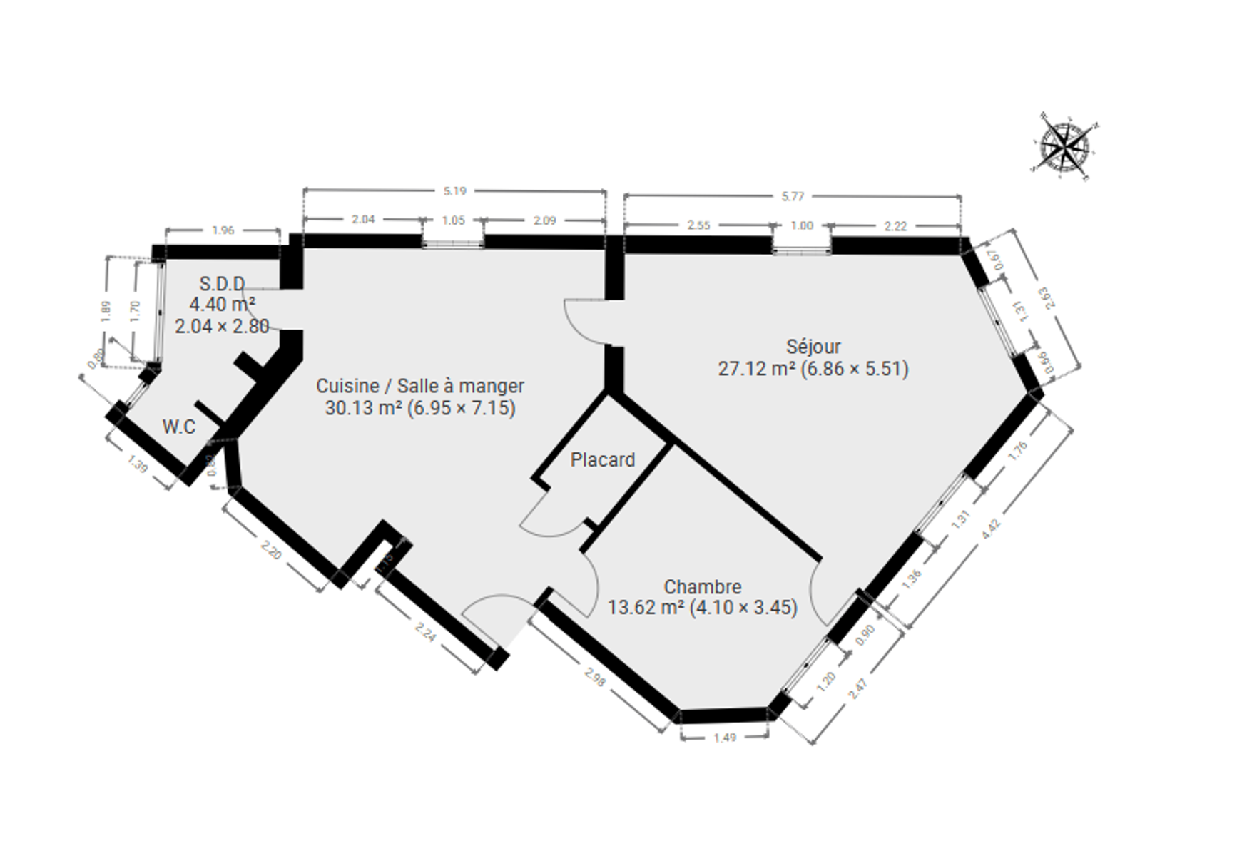
Appartement à 2 pas du parc Josaphat. Situé au 4e étage sans ascenseur, l’appartement se compose comme suit: Hall d’entrée de 4 m² donnant accès à la salle à manger et cuisine équipée (frigo, réfrigérateur, taque gaz, hotte) de 30m², salon de 32m², chambre de 14m², buanderie avec emplacement sèche linge à condensation, salle de douches avec WC de 6m². DIVERS: PEB: E-, charges €132/mois comprenant ( Syndic, assurance, entretien des communs, eau), cave.

Infos complémentaires (Composition et m2 NETS (intra muros):

Hall d’entrée +/- 4 m²

salle à manger et cuisine équipée +/- 30m²

salon de +/- 32m²

chambre de +/- 14m²

salle de douches avec WC +/- 6m²

n'hésitez pas

Contactez-nous

Visitez ce bien avec Quentin

+32 473 83 59 95
quentin@bytheway.be

Les traductions NL et EN de notre nouveau site sont en cours et seront bientôt disponibles.

The NL & EN versions of our new website are in progress and will be available soon.

De NL & EN versies van onze nieuwe website zijn onder constructie en zullen binnenkort beschikbaar zijn.

une recherche spécifique?

Contactez-nous !

Un de nos agents prendra contact avec vous pour affiner vos critères de recherche. Nous vous proposons toujours des biens qui correspondent à votre projet.

Nous avons bien reçu votre demande de visite !

Nous vous recontacterons dans les meilleurs délais.

Merci ! Nous avons bien reçu votre demande !

L’un de nos collaborateurs vous recontactera dans les meilleurs délais.