Play Video
1300 - Wavre

Terrain Vendu

laurent@bytheway.be
+32 475 70 11 16
1 150 000 €
0
?
Non
7810

Fairway 2 - b

Dans le Domaine privé du Bercuit, en bordure du fairway #2 du parcours de Golf, vaste terrain à bâtir de 78a20ca.
La parcelle est plate et a fait l’objet d’une demande de permis de bâtir qui a entre temps été accordée.
Les charges de la copropriété liées à l’entretien du Domaine s’élèvent à 680€/an.
Le terrain est vendu libre de constructeur, cependant accompagné d’un permis de bâtir accordé. (Estimatif des coûts de construction sur demande)
Libre aux acquéreurs de prendre contact avec l’architecte Jean-Marie Gillet afin de convenir des modalité de sa réalisation.
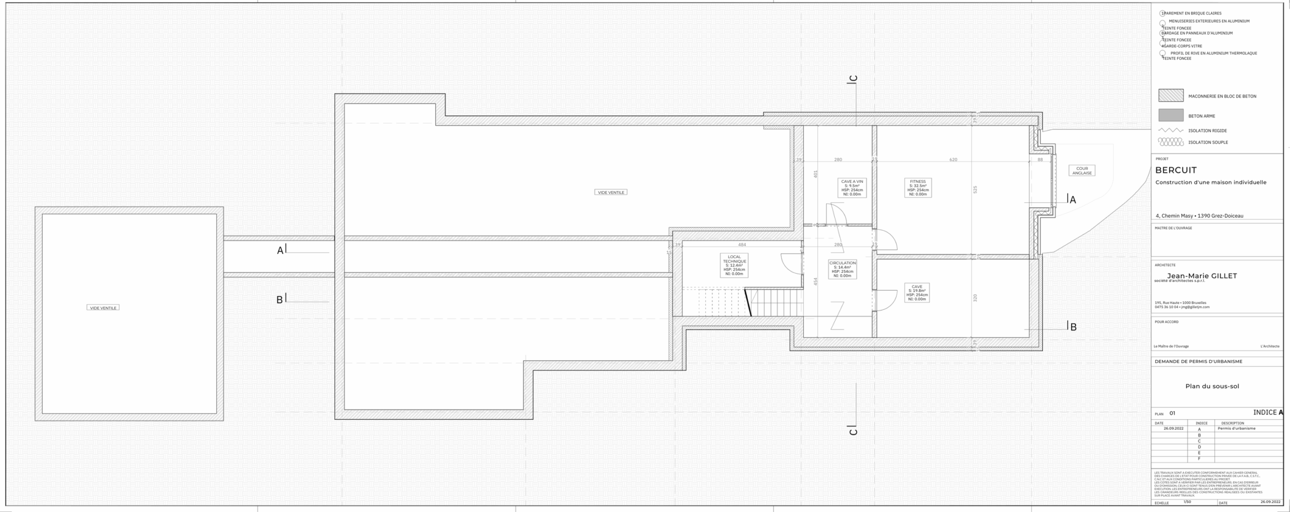
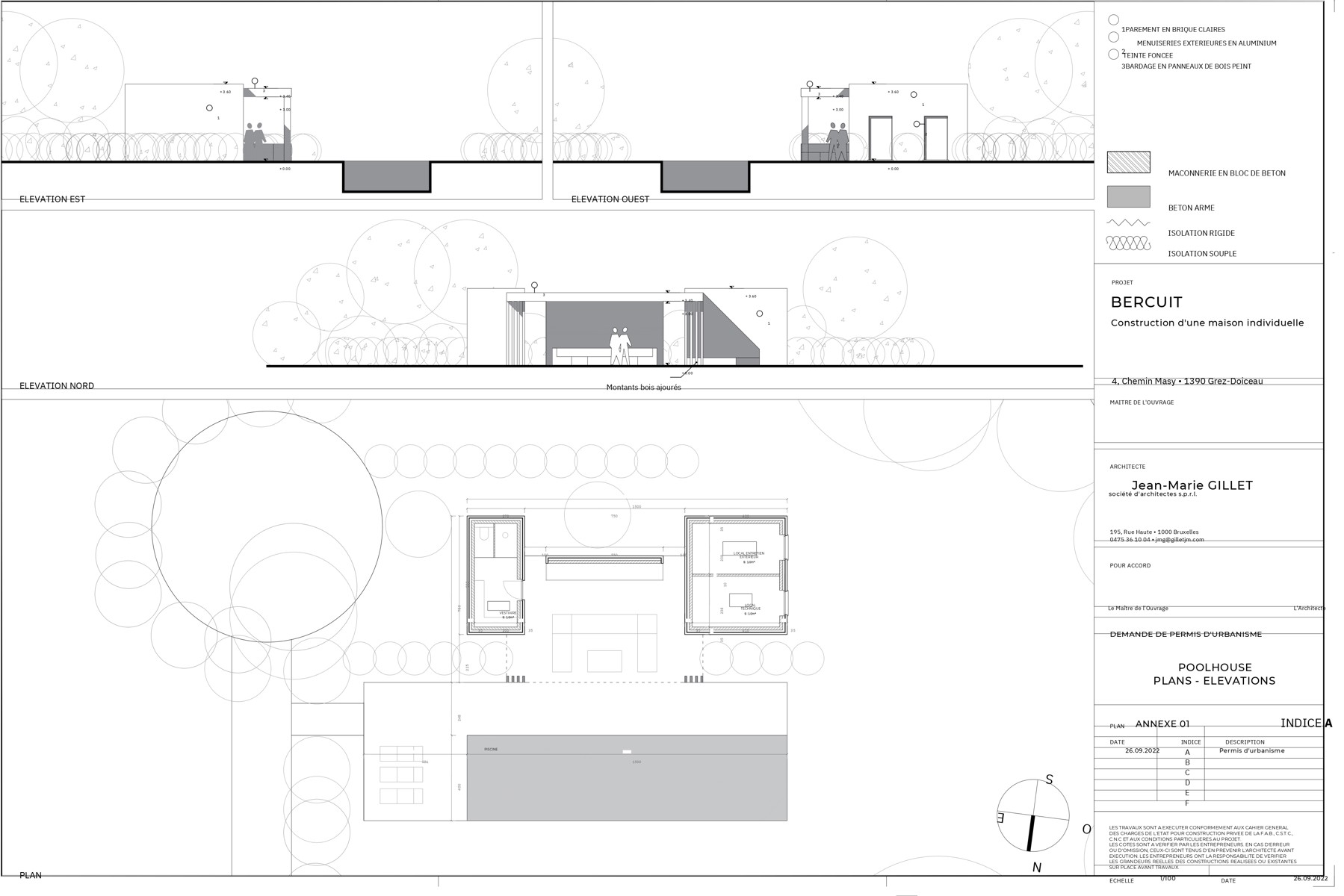
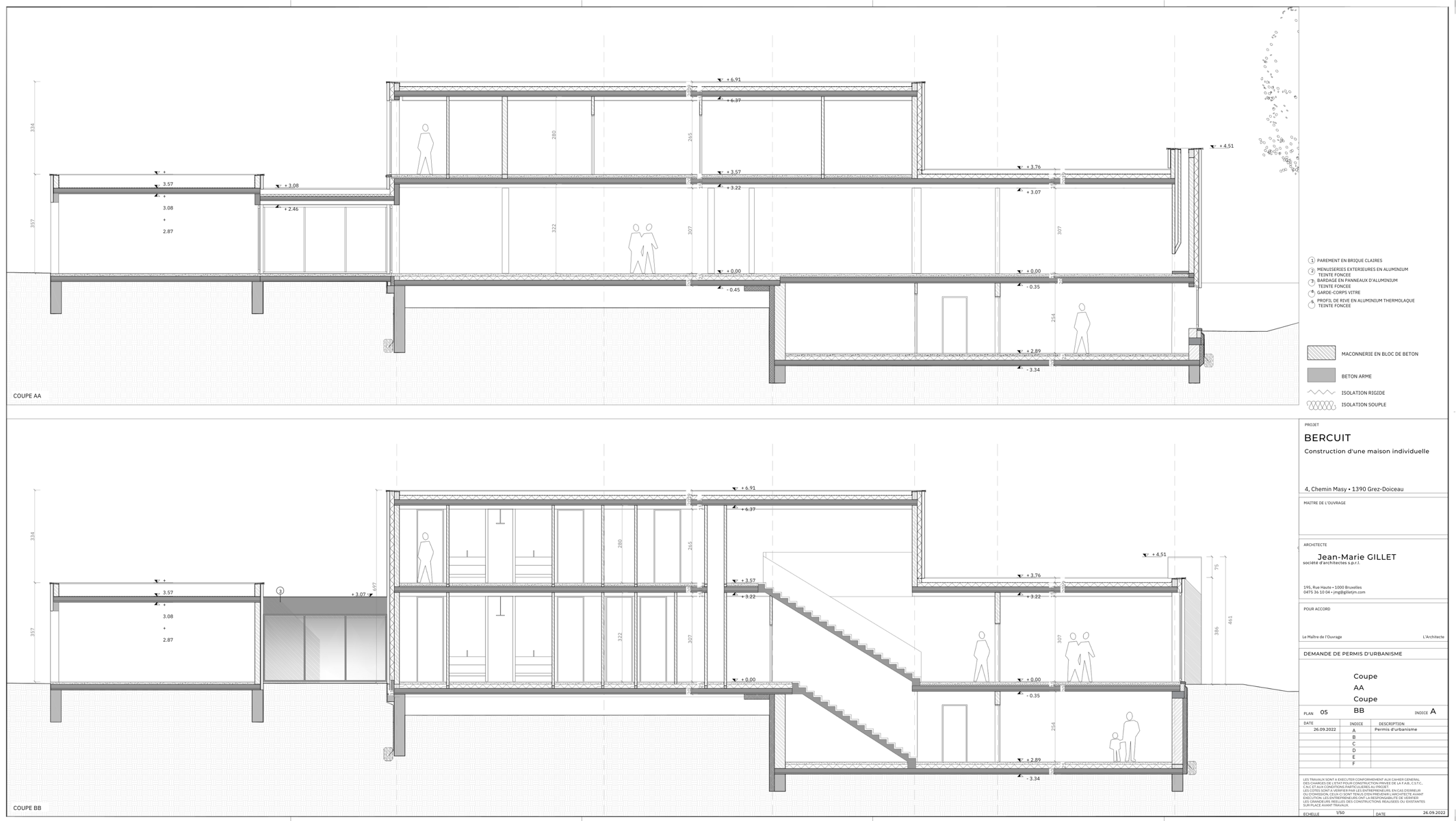
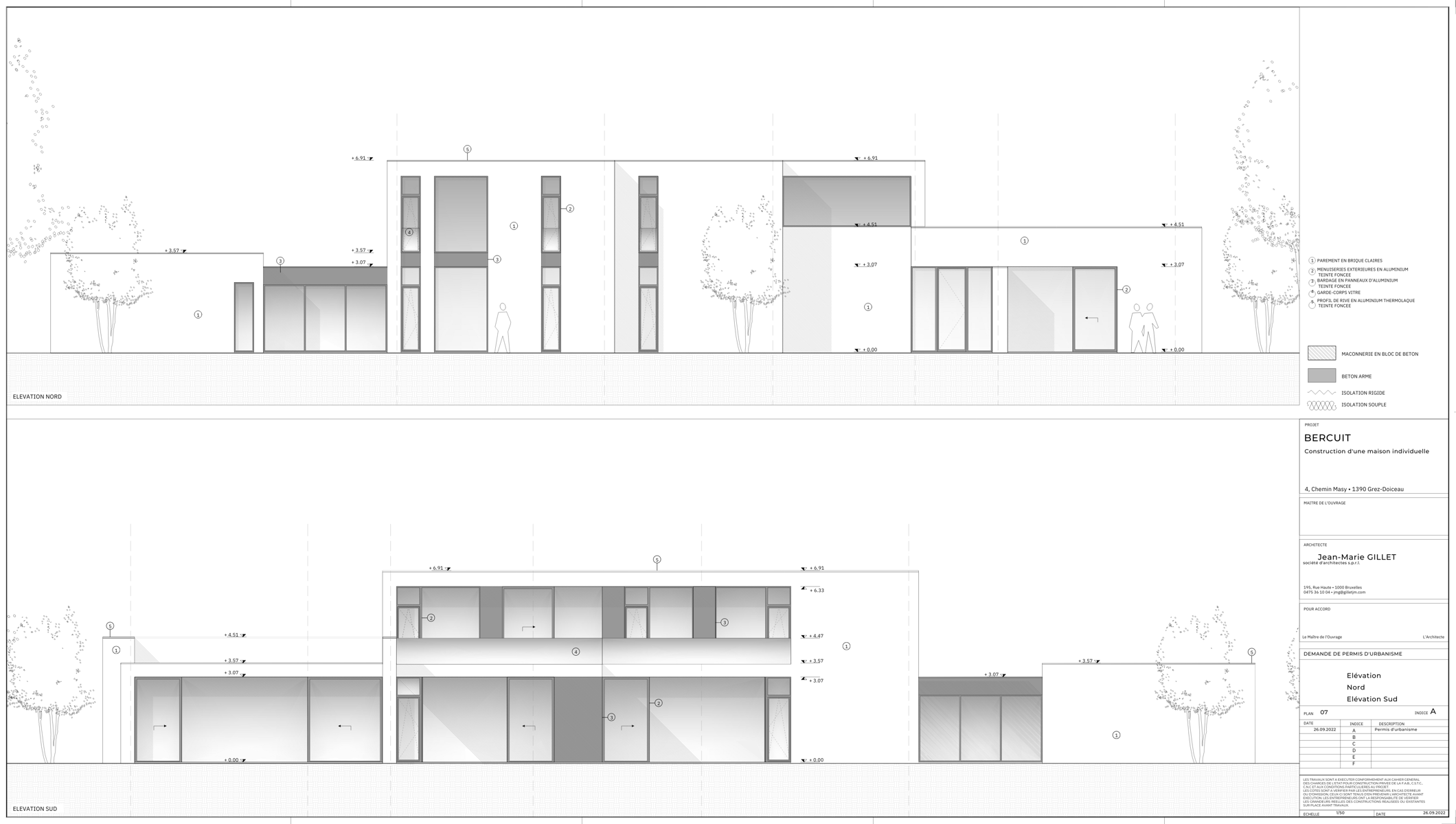
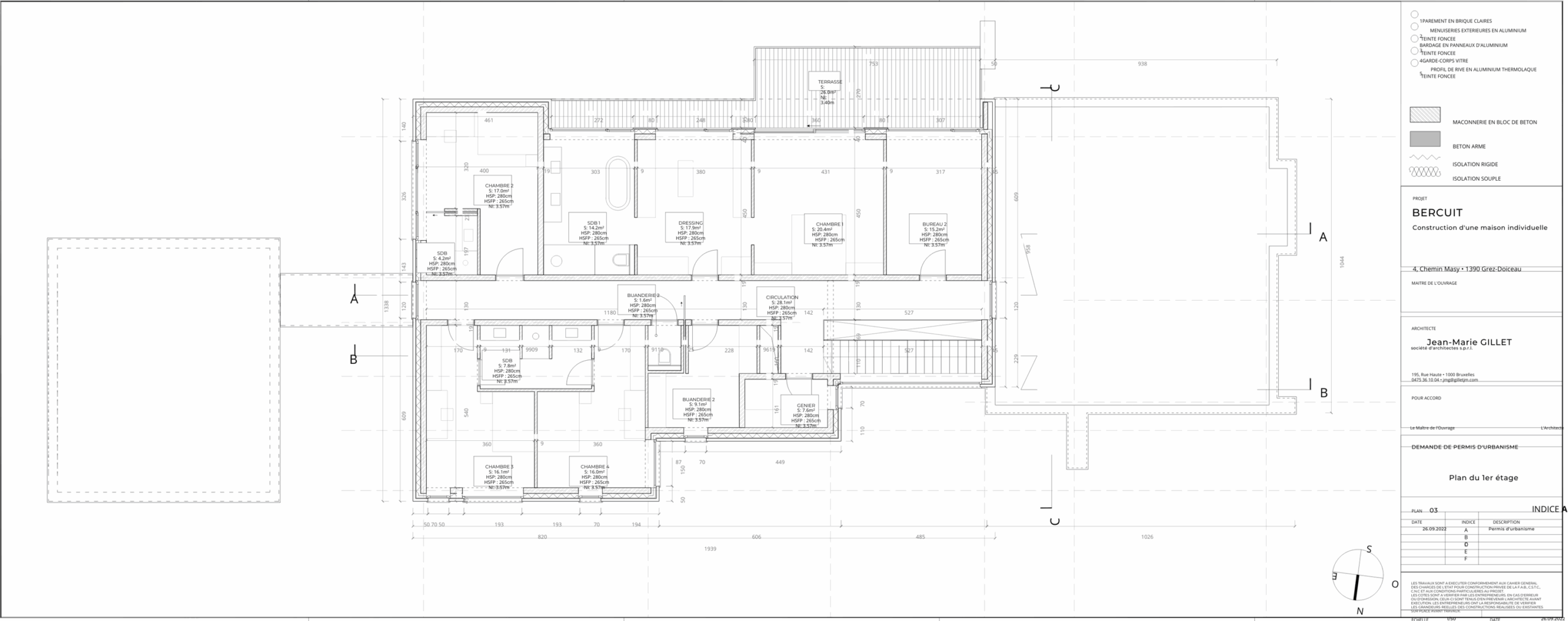
Projet d’une splendide villa de +/-600 m² avec dépendances.
La maison comprendrait :
Au RDC : Cuisine + séjour + bureau + 2CH avec salle da bain + salle de jeu + buanderie.
A l’étage : 4 CH dont splendide master bedroom et salles d’eau + bureau.
Au Sous-sol : Cave + cave à vin et espace polyvalent.
Construction hors-sol : 600m² .
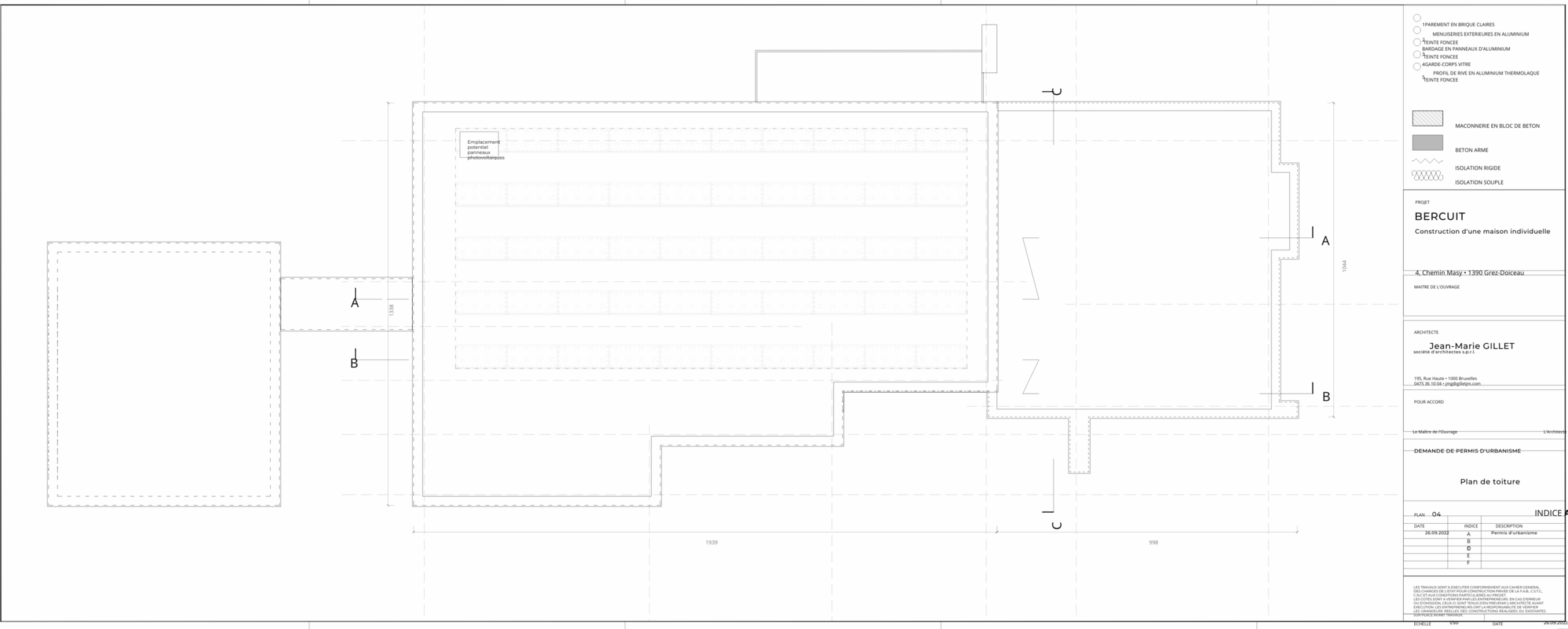
La toiture serait plate. Des dépassants de toitures et des terrasses permettraient de limiter l’apport solaire l’été des baies exposées au sud.
Une cour anglaise serait aménagée pour créer un puits de lumière vers le sous-sol.
La piscine (15X4), pool house de 83m² et un garage complèteraient le bâtit.
Les eaux usées seront traitées par une station d’épuration physico-chimique.
Le chauffage serait assuré par une pompe à chaleur géothermique sol eau.
Des panneaux solaires seraient prévus.

n'hésitez pas

Contactez-nous

Visitez ce bien avec Laurent

+32 475 70 11 16
laurent@bytheway.be

Les traductions NL et EN de notre nouveau site sont en cours et seront bientôt disponibles.

The NL & EN versions of our new website are in progress and will be available soon.

De NL & EN versies van onze nieuwe website zijn onder constructie en zullen binnenkort beschikbaar zijn.

une recherche spécifique?

Contactez-nous !

Un de nos agents prendra contact avec vous pour affiner vos critères de recherche. Nous vous proposons toujours des biens qui correspondent à votre projet.

Nous avons bien reçu votre demande de visite !

Nous vous recontacterons dans les meilleurs délais.

Merci ! Nous avons bien reçu votre demande !

L’un de nos collaborateurs vous recontactera dans les meilleurs délais.