1200 - Woluwe-Saint-Lambert

Appartement Loué

didier@bytheway.be
+32 471 50 28 74
2 000 €
4 Ch
140 m²
Non

Aquilon 9 RDC

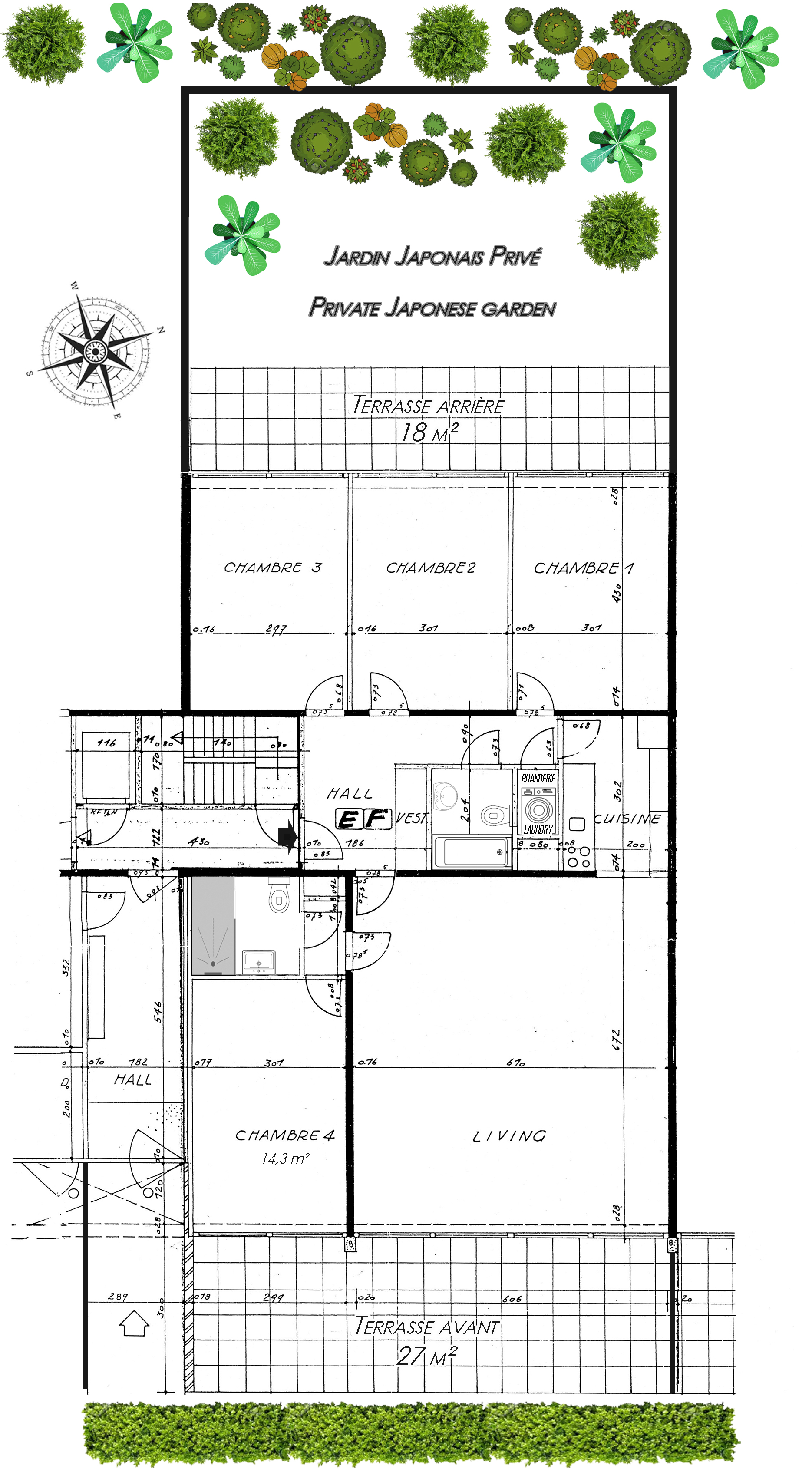
Au cœur des « Jardins Saint-Lambert », parc de 3 hectares à 600 m. de la station Roodebeek (métro/tram/bus), du Woluwe Shopping et d’autres commerces, dans un havre de paix piétonnier, By the Way vous propose ce très bel appartement rez-de-jardin de 140 m² offrant :
– hall d’entrée (porte blindée, serrure Fichet),
– vaste living de 42m² (parquet en chêne) avec +- 12 m² de porte-fenêtres donnant sur la terrasse avant de 27m² orientée SE avec tente solaire.
– cuisine semi-ouverte et super-équipée (taque, four multifonctions, réfrigérateur-surgélateur et lave vaisselle),
– chambre 1 de 14m² en façade avant avec salle de douche et wc et donnant – comme le séjour – sur la terrasse avant.
– Via le hall central, accès à la salle de bain avec 2è wc, à l’espace buanderie séparé ainsi qu’aux
chambres 2, 3 et 4 de mêmes dimensions et surface de 13m² avec volets occultants et donnant sur la
– 2ème terrasse à l’arrière de 18 m²
et le jardin japonais de 40 m², orienté ouest et sans vis-à-vis.
– Châssis double-vitrage partout
– 2 caves de 2m² incluses.
Compris dans le prix : un grand garage-box fermé (8mx3) avec porte télécommandée !
– Excellent PEB C, électricité et R.U. conformes – Ascenseur aux normes – Si ncessaire, buanderie commune à côté du garage.
Terrain de tennis privé en ‘french court’ avec tableau de réservation et clé d’accès.
– Chauffage central récent de 2019 au gaz à condensation à cogénération = très économique !
– Provisions de charges pour l’entretien, l’eau et l’électricité des communs, les frais d’ascenseur, le syndic, l’entretien des jardins, le traitement et transport des poubelles ainsi que le chauffage, l’eau chaude et l’eau froide privative : 250 €. Très peu pour une telle surface et de tels services… Donc TOUT sauf électricité privé et wifi !
A voir rapidement !

n'hésitez pas

Contactez-nous

Visitez ce bien avec Didier

+32 471 50 28 74
didier@bytheway.be

Les traductions NL et EN de notre nouveau site sont en cours et seront bientôt disponibles.

The NL & EN versions of our new website are in progress and will be available soon.

De NL & EN versies van onze nieuwe website zijn onder constructie en zullen binnenkort beschikbaar zijn.

une recherche spécifique?

Contactez-nous !

Un de nos agents prendra contact avec vous pour affiner vos critères de recherche. Nous vous proposons toujours des biens qui correspondent à votre projet.

Nous avons bien reçu votre demande de visite !

Nous vous recontacterons dans les meilleurs délais.

Merci ! Nous avons bien reçu votre demande !

L’un de nos collaborateurs vous recontactera dans les meilleurs délais.