1630 - Linkebeek

Appartement Loué

benoit@bytheway.be
+32 491 74 58 34
1 285 €
2 Ch
85 m²
Non
85

Hêtres 15 - 3G

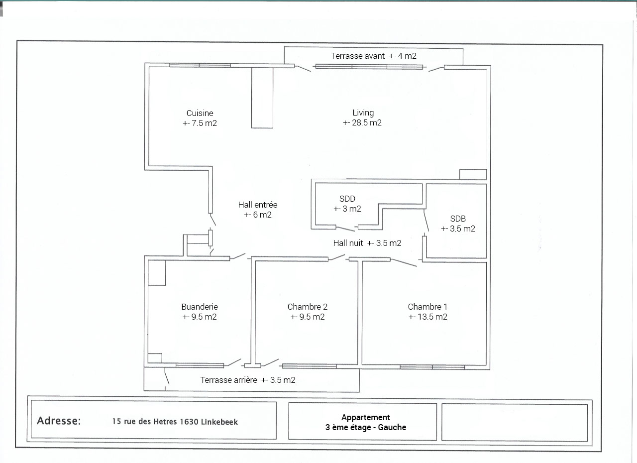
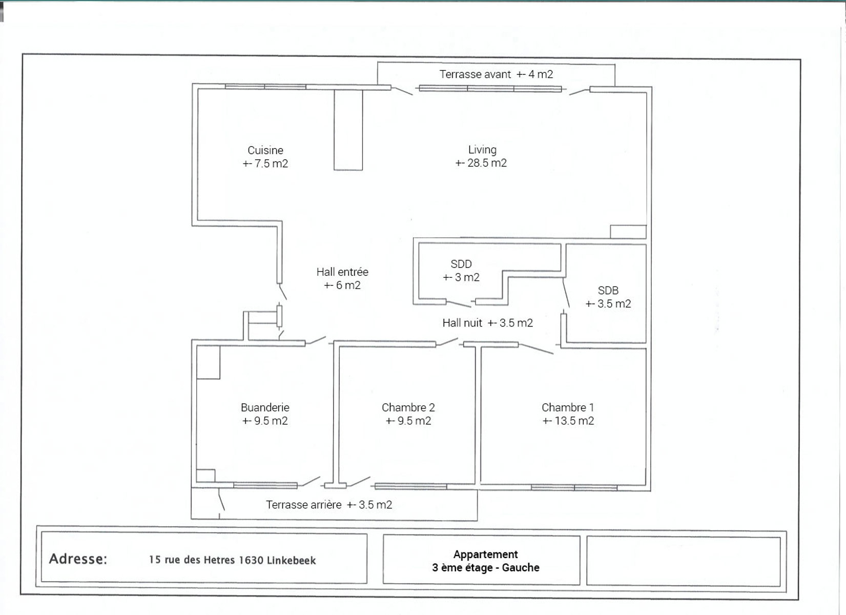
Infos & Visites, contactez Benoît : 0491 74 58 34 – benoit@bytheway.be – A Linkebeek, dans une calme impasse à seulement 850m de la gare. By The Way à le plaisir de vous présenter ce magnifique appartement de +/- 85m2 nets , 2 chambres et 2 salles d’eau, PEB B! Au 3ème étage gauche avec ascenseur d’une petite copropriété paisible de 7 unités. Première occupation après rénovation totale. Composition: vaste hall d’entrée ouvert sur le séjour de +/- 36m2 avec cuisine américaine, balcon terrasse sur une partie de la longueur du séjour, vaste buanderie / dressing. Hall de nuit desservant une chambre parentale de +/- 13m2 avec sa salle de bains, son wc privatif et une chambre de +/- 10m2 avec sa salle de douche et son wc privatif. Balcon / terrasse arrière. Charges: provision de 250 euros comprenant : entretien des communs, chauffage central, production d’eau chaude et assurance de l’immeuble. Une belle cave privative est comprise dans le prix. En option: un garage box fermé avec porte sectionnelle automatique et possibilité de se stationner devant à 100 euros. Techniques : chaudière collective au gaz et à condensation et calorimètres électroniques, système de ventilation double flux, châssis doubles vitrages en aluminium, parquet massif, porte privative blindée et sécurisée, cuisine équipée d’un four, d’un lave vaisselle, d’une taque vitrocéramique et d’un frigo avec compartiment congélateur. Infos & Visites, contactez Benoît : 0491 74 58 34 – benoit@bytheway.be

n'hésitez pas

Contactez-nous

Visitez ce bien avec Benoît

+32 491 74 58 34
benoit@bytheway.be

Les traductions NL et EN de notre nouveau site sont en cours et seront bientôt disponibles.

The NL & EN versions of our new website are in progress and will be available soon.

De NL & EN versies van onze nieuwe website zijn onder constructie en zullen binnenkort beschikbaar zijn.

une recherche spécifique?

Contactez-nous !

Un de nos agents prendra contact avec vous pour affiner vos critères de recherche. Nous vous proposons toujours des biens qui correspondent à votre projet.

Nous avons bien reçu votre demande de visite !

Nous vous recontacterons dans les meilleurs délais.

Merci ! Nous avons bien reçu votre demande !

L’un de nos collaborateurs vous recontactera dans les meilleurs délais.