1420 - Braine-l'Alleud

Industrieel Te koop

kristof@bytheway.be
+32 471 77 09 08
2 750 000 €
0
1845 m²
Non
6557

PARC INDUSTRIEL 5

Info & Bezoeken, neem contact op met Kristof: 0471 77 09 08 – kristof@bytheway.be l Gelegen in het Industriepark van Wauthier-Braine – Braine-le-Château.
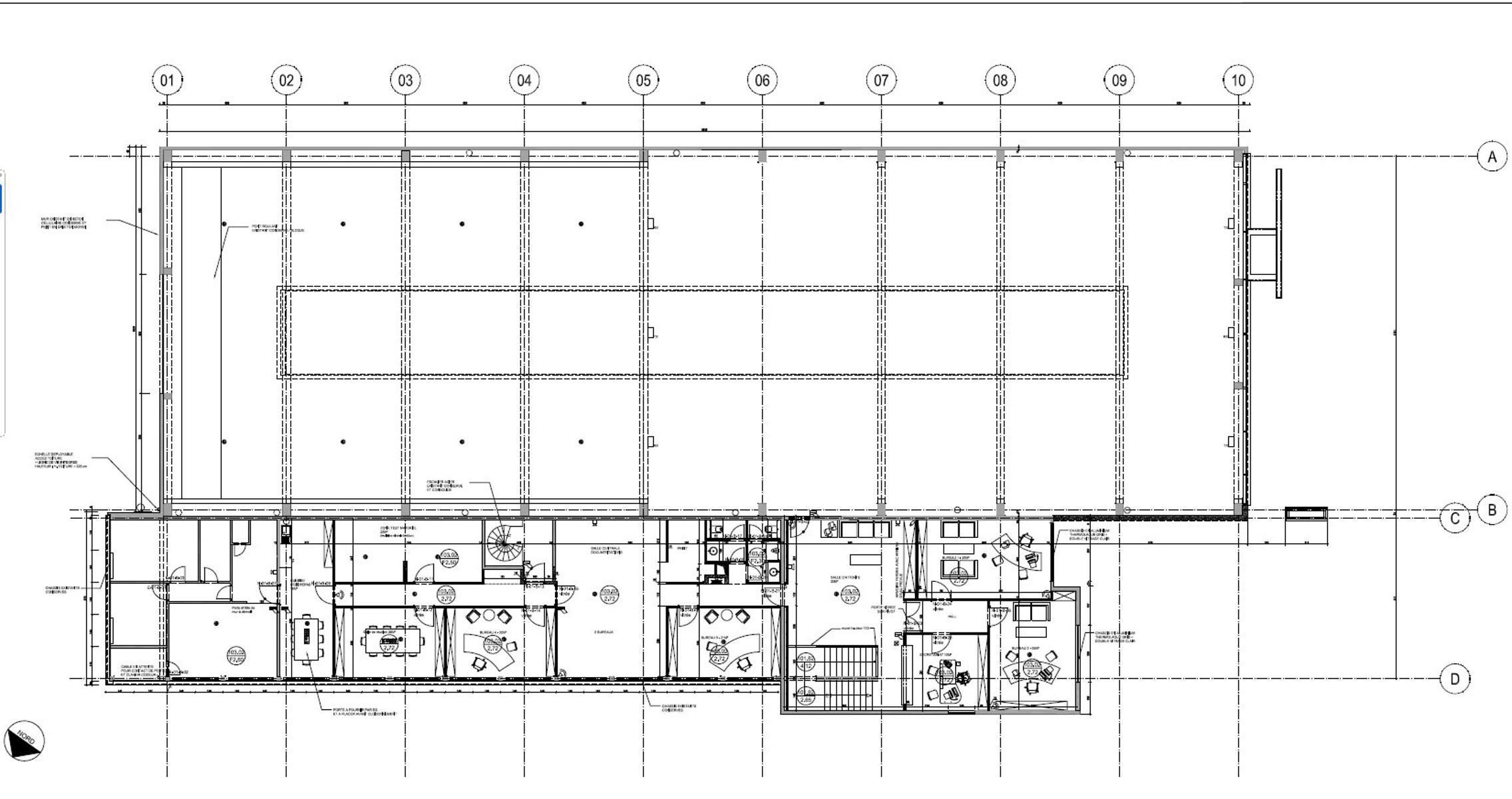
By The Way presenteert u dit complex van kantoren (735 m²) + magazijnen (1.110 m²). De bruto oppervlakte van het geheel bedraagt 1.845 m² op een omheind terrein van 6.557 m² met 3 toegangen.
Het industriepark in Wauthier-Braine is strategisch gelegen aan de E19, vlakbij Brussel en de verkeersassen naar Frankrijk en Duitsland.
Het gebouw (gedeeltelijk gerenoveerd in 2008) bestaat uit:
Toegang tot de kantoren, mogelijkheid tot opsplitsing in 2 onafhankelijke kantoren. Op de gelijkvloerse verdieping: kantoren (BULO), receptie, toiletten, toegang tot de magazijnen. Op de 1e verdieping: kantoren, receptie, toiletten, toegang tot de magazijnen. + erkende conciërge van 75 m².
2 magazijnen van 550 m² per stuk (verbonden door een sectionaaldeur) + mezzanine van 60 m² – H.S.P.: 8,00 m – 2 toegangen via sectionaaldeuren (4,5 m x 5 m).
Huidig gebruik: 1 magazijn voor showroom + 1 magazijn voor opslag (STOW).
Constructie in betonnen vloerplaten + betonnen vloer + dakraam + driefasige bekabeling + hefbrug van 17 ton.
Hoogspanningscabine – stookruimte – parkeerplaatsen: +- 30 plaatsen (mogelijkheid om meer te asfalteren).
Info & bezichtigingen, neem contact op met Kristof: 0471 77 09 08 – kristof@bytheway.be

n'hésitez pas

Contactez-nous

Visitez ce bien avec Kristof

+32 471 77 09 08
kristof@bytheway.be

Bezoek deze woning met Kristof

+32 471 77 09 08
kristof@bytheway.be

Les traductions NL et EN de notre nouveau site sont en cours et seront bientôt disponibles.

The NL & EN versions of our new website are in progress and will be available soon.

De NL & EN versies van onze nieuwe website zijn onder constructie en zullen binnenkort beschikbaar zijn.

een specifieke zoekopdracht?

Conctacteer ons!

Een van onze agenten zal contact met u opnemen om uw zoekcriteria te verfijnen. Wij stellen altijd eigendommen voor die overeenstemmen met uw project.

We hebben je bezoekaanvraag ontvangen!

We nemen zo snel mogelijk contact met je op.

Hartelijk dank! We hebben je verzoek ontvangen!

Een van onze medewerkers zal zo snel mogelijk contact met je opnemen.