
Commerce À vendre
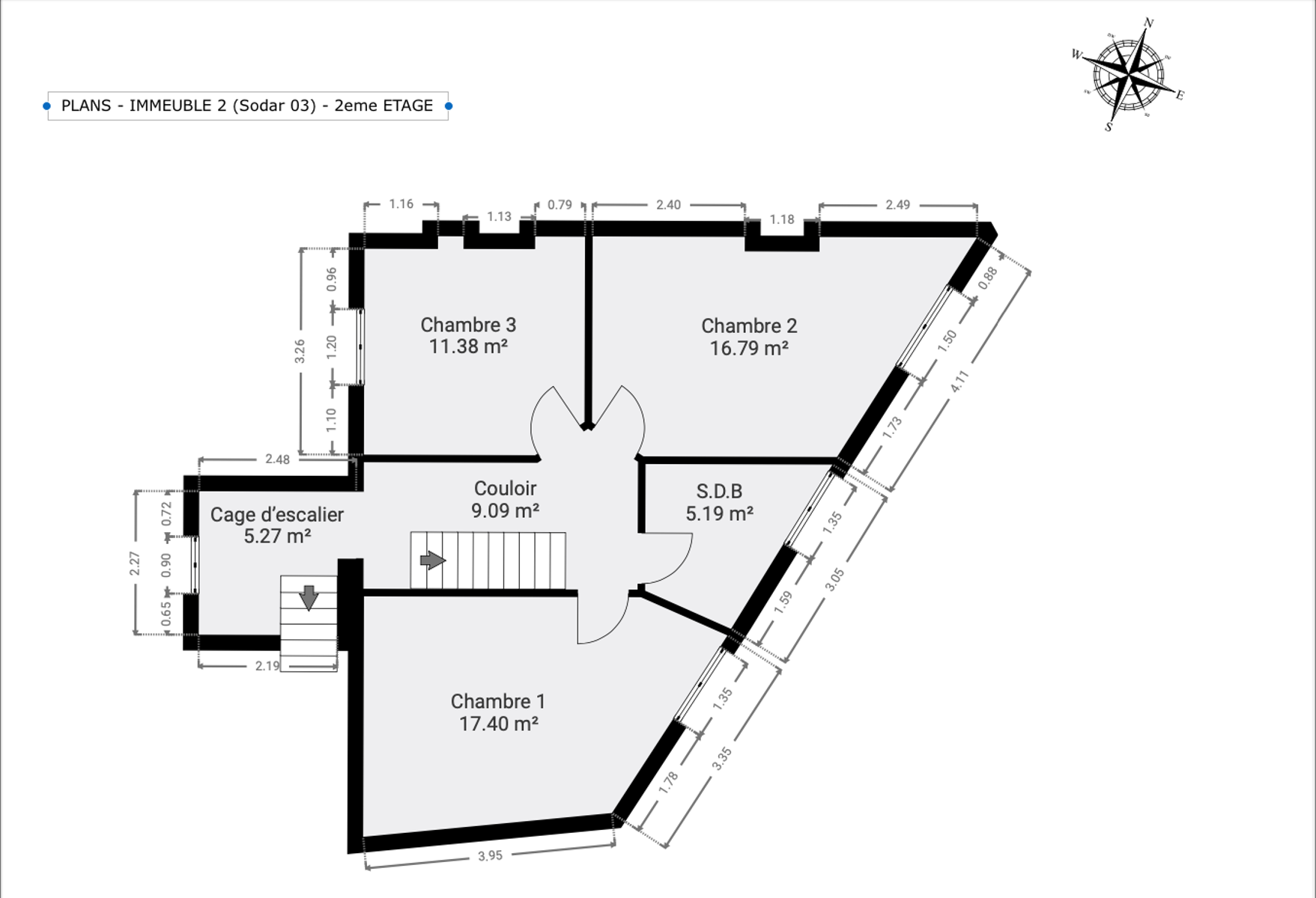
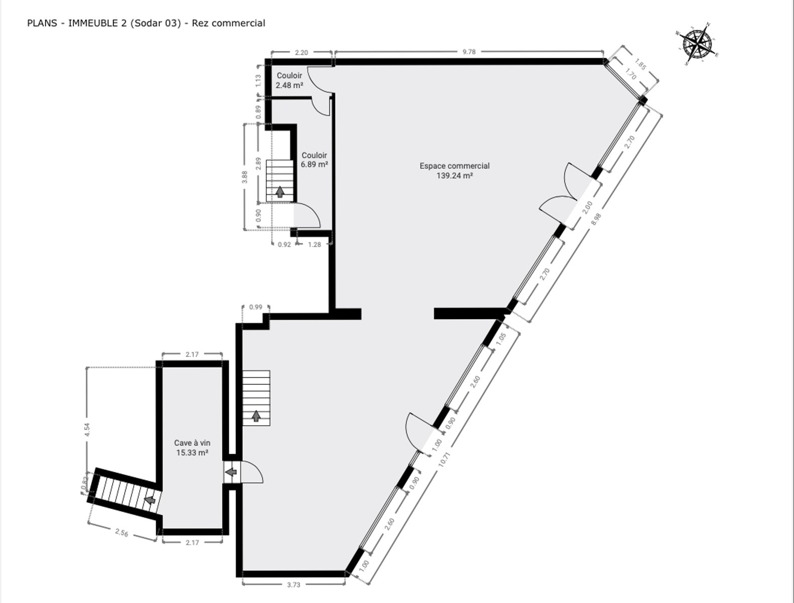
DINANT – Situé en plein centre-ville, à proximité immédiate de la gare et du pont Charles de Gaulle, cet ensemble immobilier bénéficie d’un emplacement privilégié face à la collégiale et à la citadelle. Il se compose de deux immeubles de rapport totalisant cinq unités. Le bâtiment principal comprend, au rez-de-chaussée, une vaste surface commerciale de ± 190 m² avec réserve. Aux étages supérieurs, un logement de fonction s’étend sur trois niveaux et offre deux salons, une cuisine, une salle à manger, trois chambres, une salle de bain ainsi qu’un grenier aménageable. Le second bâtiment, accessible par une entrée indépendante située dans une rue latérale, se compose de trois logements. L’appartement du premier étage, d’une superficie de ± 80 m², est à rénover entièrement et comprend une pièce de vie lumineuse, une cuisine, une salle de bain et deux chambres. Au deuxième étage, un appartement de ± 88 m², actuellement loué, dispose de trois chambres, salon, cuisine, sdb. Enfin, au dernier étage, des combles aménageables sur une surface de 92 m² offrent un beau potentiel d’agrandissement. Ce vaste ensemble de caractère se prête à de nombreux projets immobiliers, qu’il s’agisse d’un développement résidentiel, d’un commerce ou d’un établissement horeca. Une opportunité rare au cœur de Dinant ! Technique: PEB D-E-G, chaudière ind. gaz, Electricité non conforme.

Un de nos agents prendra contact avec vous pour affiner vos critères de recherche. Nous vous proposons toujours des biens qui correspondent à votre projet.
L’un de nos collaborateurs vous recontactera dans les meilleurs délais.