2 500 €
0
512 m²
Non
115

IL Vesuvio

Restaurant à louer avec fonds de commerce à vendre, offrant une réelle opportunité pour un restaurateur souhaitant s’installer dans un emplacement exploité depuis plus de 30 ans.

Situé entre Caserne et La Chasse, ce bien bénéficie d’une très bonne visibilité dans un environnement animé et se prête à une reprise immédiate. Il se trouve sur l’Avenue des Casernes, face à la Commune d’Etterbeek.

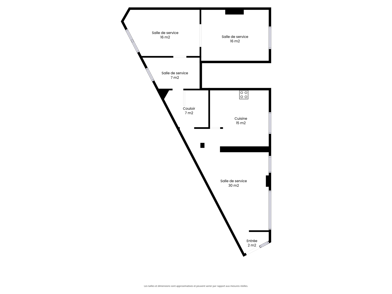
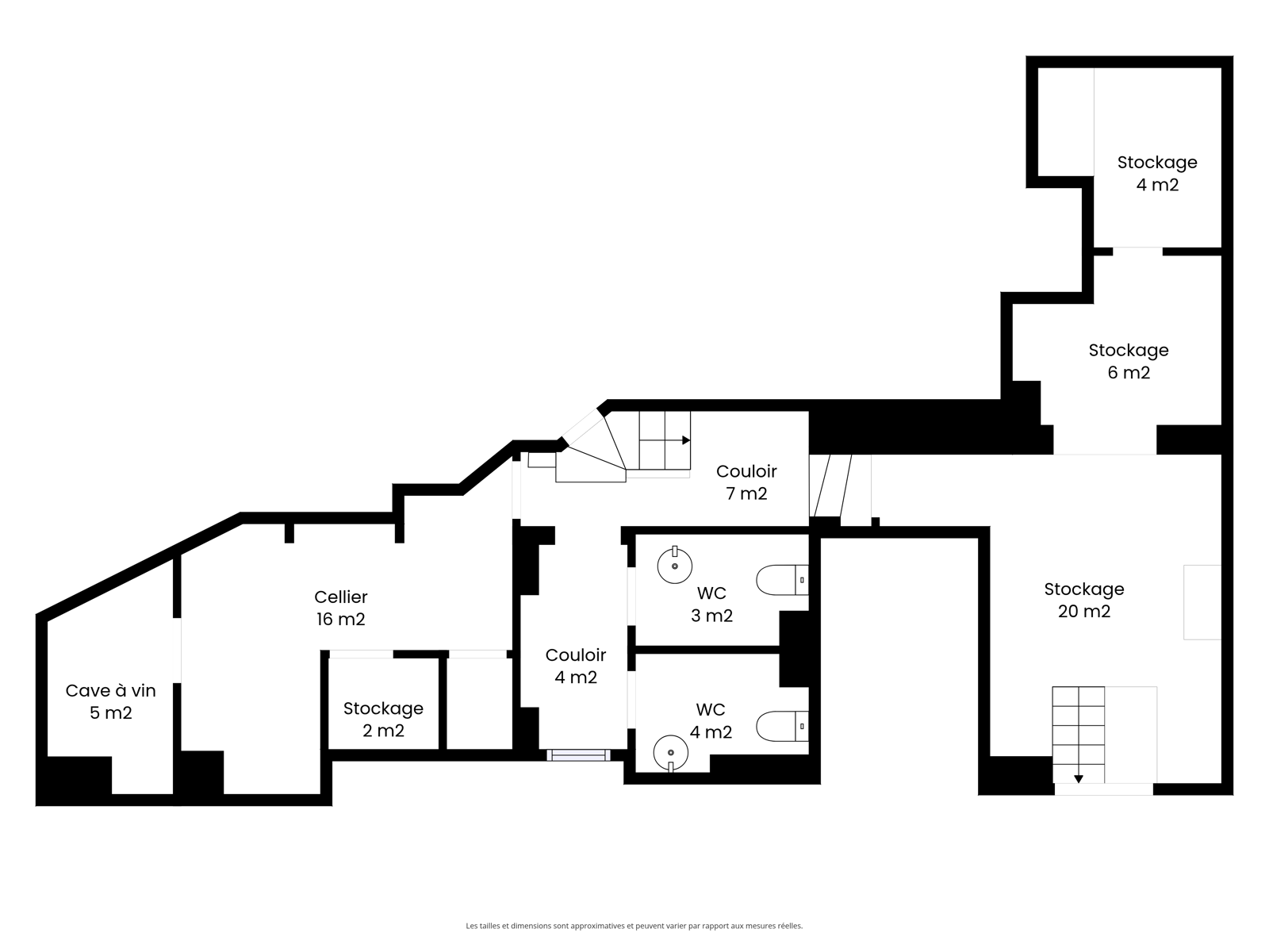
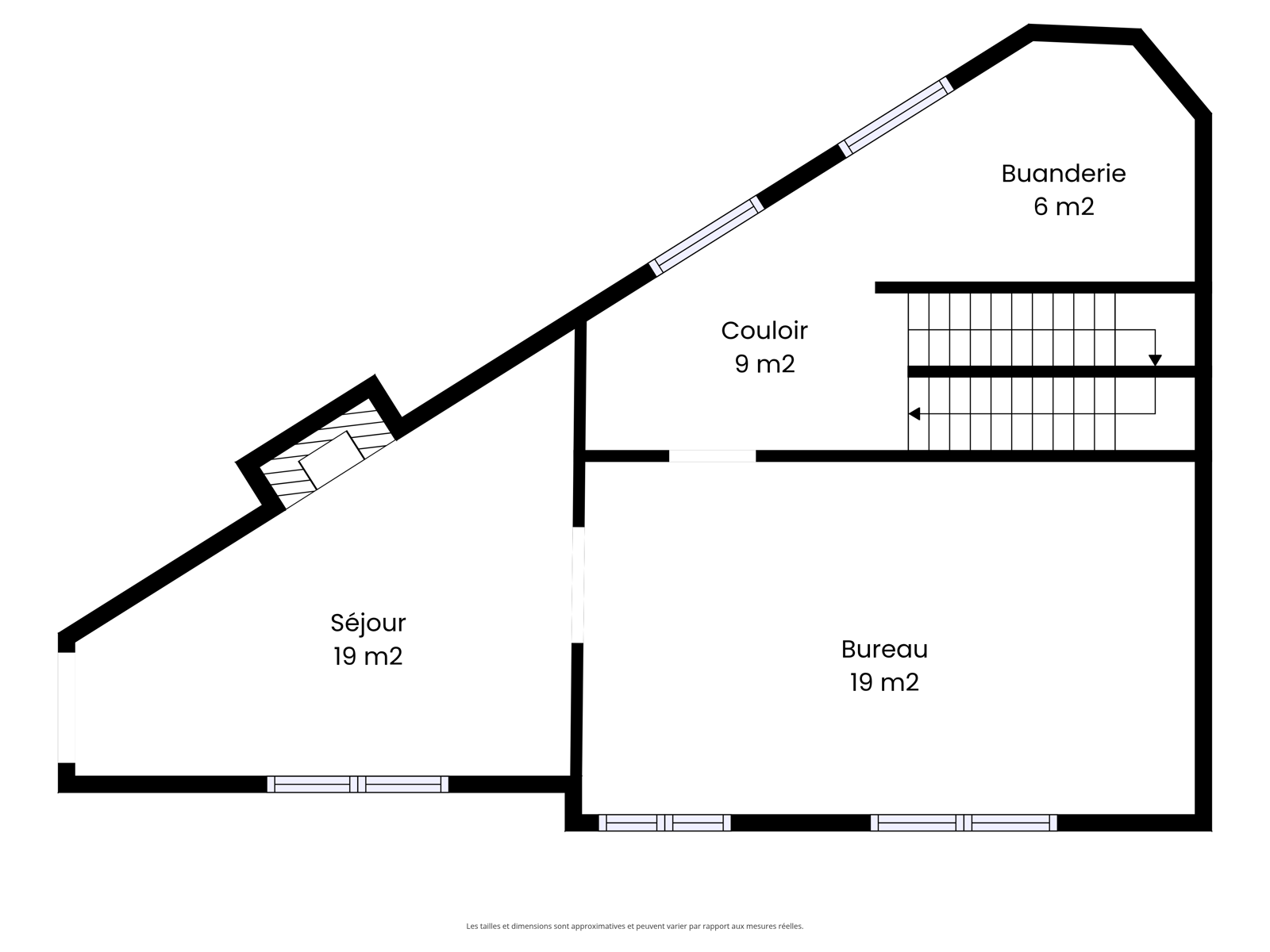
Le restaurant dispose de salles pouvant accueillir plus de 50 couverts ainsi que d’une terrasse de +- 30 couverts. Un four à pizza à bois fonctionnel est installé à l’entrée et la cuisine professionnelle HORECA est entièrement équipée. À l’étage se trouvent des espaces annexes comprenant des zones de stockage et un bureau. Le sous-sol comprend une chambre froide ainsi qu’un vaste espace de stockage.

Le loyer s’élève à 2.500€ auxquels s’ajoute le précompte immobilier annuel. Le fonds de commerce est proposé à 250.000€ en reprise des parts sociales de la société ou à 300.000€ dans le cadre d’une vente classique.

Les informations financières, les conditions de reprise et le dossier complet sont disponibles sur simple demande.

Les visites sont organisées exclusivement sur rendez-vous avec l’agence.
.

n'hésitez pas

Contactez-nous

Visitez ce bien avec Laurent

+32 475 70 11 16

Les traductions NL et EN de notre nouveau site sont en cours et seront bientôt disponibles.

The NL & EN versions of our new website are in progress and will be available soon.

De NL & EN versies van onze nieuwe website zijn onder constructie en zullen binnenkort beschikbaar zijn.

une recherche spécifique?

Contactez-nous !

Un de nos agents prendra contact avec vous pour affiner vos critères de recherche. Nous vous proposons toujours des biens qui correspondent à votre projet.

Nous avons bien reçu votre demande de visite !

Nous vous recontacterons dans les meilleurs délais.

Merci ! Nous avons bien reçu votre demande !

L’un de nos collaborateurs vous recontactera dans les meilleurs délais.