
Maison À vendre
En intérieur d’ilot, à l’angle de l’Avenue Molière et de le Chaussée d’Alsemberg, By the Way vous présente ces deux arrières-maisons avec piscine intérieure, le tout en parfait état.
L’ensemble immobilier se retrouve à l’arrière d’une copropriété super sécurisée et se compose d’une grande arrière-maison avec piscine et jardin + une petite maison une chambre + grand garage box pour 2 voitures + emplacements de parking extérieurs.
La maison principale comprend deux étages:
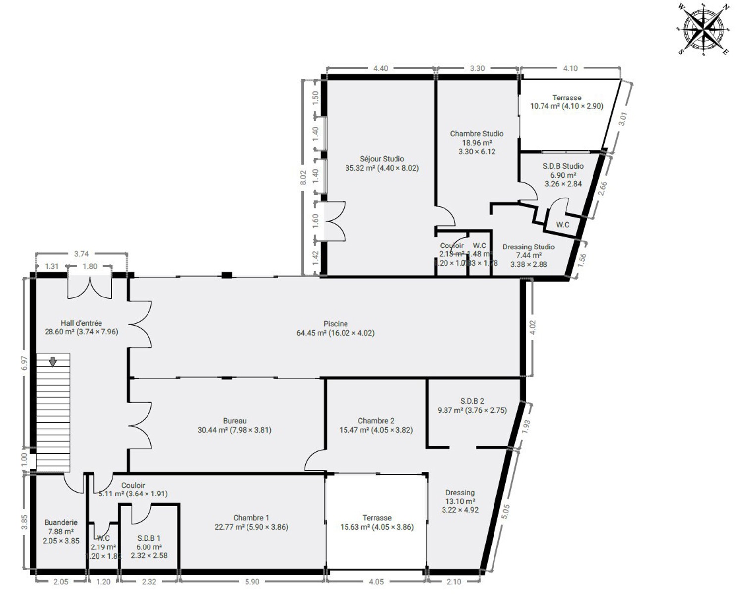
RDC: hall d’entrée, piscine intérieure donnant sur le jardin, une vaste buanderie, 2 chambres en suites, deux salles de bains avec bains, douches et toilettes.
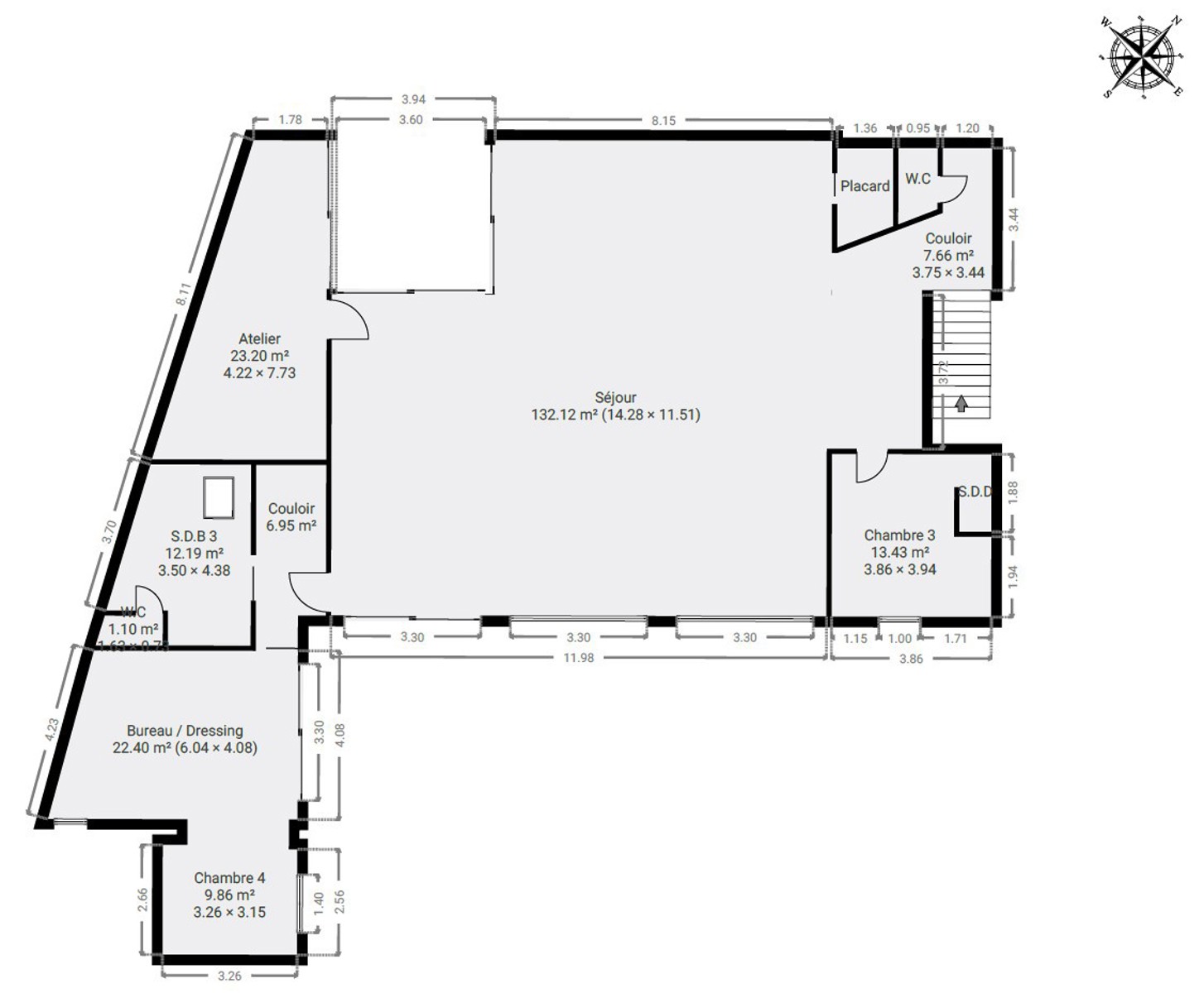
Au 1er étage, une vaste superficie séjour, divisé en différentes parties: salon, salle à manger, coin cinema, cuisine ouverte, arrière-cuisine, 3 chambres et deux salle de bains en-suite avec bains, douches, toilette séparée, terrasse (+/- 36m² – orientation Ouest). Une verrière qui s’ouvre par motorisation.
La petite maison indépendante se compose d’un salon avec cuisine ouverte, vestiaire, WC séparé, chambre à coucher avec dressing, salle de bains avec bain, douche et WC.
Une maison dans un bon état d’entretien général, habitable directement.
Électricité conforme.
PEB: D + G.
Châssis ALU double vitrage.
Chauffage central au gaz.
Chaudières gaz à condensation Vaillant récentes.
Piscine équipée d’une pompe à chaleur et d’un déshumidificateur.
Garage box fermé avec porte sectionnelle automatique pour 2 voitures + 4 emplacements de parking extérieurs .
Infos complémentaires (Composition et m² NETS (intra muros):
ARRIERE-MAISON:
Rez-de-chaussée:
– Hall d’entrée: +/- 23 m²
– Chambre 1: +/- 26 m²
– Salle de bains: +/- 6 m²
– Toilette séparé: +/- 2 m²
– Chambre 2: +/- 25 m²
– Salle de bains: +/- 15 m²
– Dressing: +/- 10 m²
– Buanderie: +/- 8 m²
– Cinéma/pièce polyvalente: +/- 25 m²
– Cour: +/- 13 m²
– Jardin: +/- 90 m²
– Garage fermé: parking pour 2 voitures
– Carport: parking pour 2 voitures
1er étage:
– Séjour + cuisine: +/- 137 m²
– Arrière cuisine: +/- 4 m²
– Toilette séparée: +/- 4 m²
– Chambre 3: +/- 14 m²
– Chambre 4: +/- 39m²
– Salle de bains: +/- 14 m²
– Atelier/Bureau: +/- 22 m²
– Terrasse: +/- 36 m²
APPARTEMENT (RDC):
– Séjour + cuisine: +/- 33 m²
– Vestiaire et toilette séparée: +/- 4 m²
– Chamrbe: +/- 18 m²
– Salle de bains: +/- 8 m²
– Dressing: +/- 11 m²
– Cour: +/- 10 m²
TECHNIQUES:
– Électricité conforme.
– PEB: D + G.
– Châssis ALU double vitrage.
– Chauffage central au gaz.
– 3 chaudières Vaillant récente.
– Piscine equipé avec un pompe à chaleur pour chauffer et un déhumidificateur.
– Façade repeint en 2025.


Un de nos agents prendra contact avec vous pour affiner vos critères de recherche. Nous vous proposons toujours des biens qui correspondent à votre projet.
L’un de nos collaborateurs vous recontactera dans les meilleurs délais.