1780 - Wemmel

Maison Sous option

quentin@bytheway.be
+32 473 83 59 95
649 000 €
3 Ch
236 m²
400 m2
520

ARTHUR 59

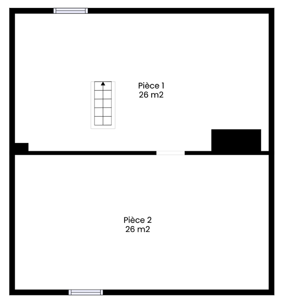
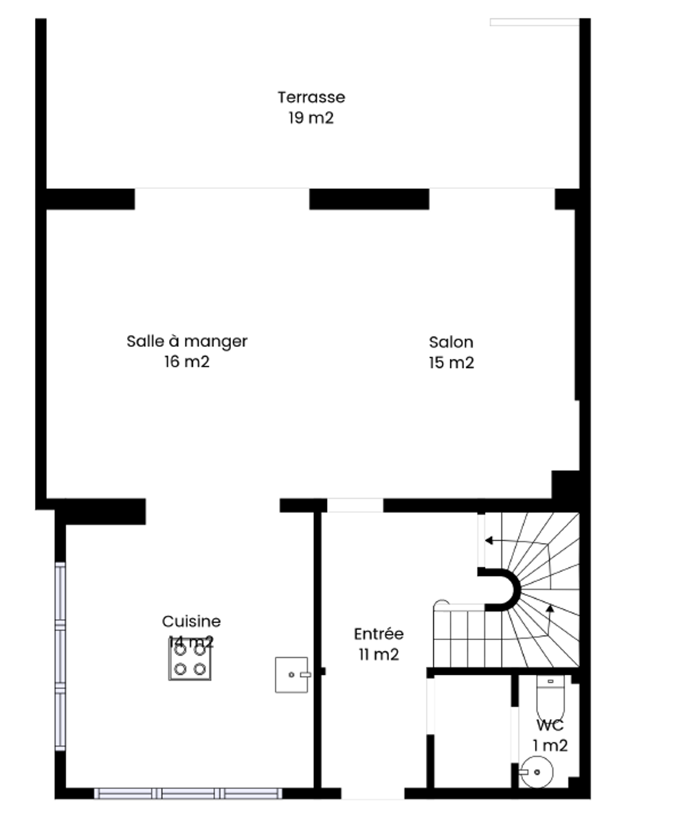
By The Way vous présente cette superbe maison 3 façades entièrement rénovée en 2021 de ±236㎡, proche des transports, des écoles, des commerces et du Ring de Bruxelles. Le bien se compose comme suit, RDC: Hall d’entrée avec espace vestiaire et WC invités, séjour de +/- 32,5㎡ donnant accès à la terrasse de +/-18㎡, la cuisine de +/- 15㎡ entièrement équipée est également ouverte sur le séjour. 1ER ETAGE: hall de nuit donnant accès aux 3 chambres de 17, 15 et 13 ㎡, salle de bains avec douche dans le bains, évier double vasque et un WC. GRENIER sur toute la surface de la maison, possibilité d’aménagement (électricité, eau et évacuation en place). SOUS-SOL: cave n°1 de 5,5 ㎡, cave n°2 +/- 8 ㎡, garage de +/- 23㎡, cave n°3 +/- 32㎡. DIVERS: PEB « B », électricité conforme, jardin de +/- 400㎡, parquet en chêne massif, volets au RDC, 15 panneaux solaires avec batterie de 7,5KW

n'hésitez pas

Contactez-nous

Visitez ce bien avec Quentin

+32 473 83 59 95
quentin@bytheway.be

Les traductions NL et EN de notre nouveau site sont en cours et seront bientôt disponibles.

The NL & EN versions of our new website are in progress and will be available soon.

De NL & EN versies van onze nieuwe website zijn onder constructie en zullen binnenkort beschikbaar zijn.

une recherche spécifique?

Contactez-nous !

Un de nos agents prendra contact avec vous pour affiner vos critères de recherche. Nous vous proposons toujours des biens qui correspondent à votre projet.

Nous avons bien reçu votre demande de visite !

Nous vous recontacterons dans les meilleurs délais.

Merci ! Nous avons bien reçu votre demande !

L’un de nos collaborateurs vous recontactera dans les meilleurs délais.